王与新作|哈雷戴维森旗舰店
哈雷戴维森创办于1903年,一个世纪以来,哈雷戴维森一直是自由大道、原始动力和美好时光的代名词。哈雷摩托车并不是生活必需品,也不是日常的代步工具,而是一种代表了自由、个性的独特生活方式。此项目的设计者当然也是一名哈雷骑士,当设计师王与接到项目委托时,第一感受并不是简单的选取空间表达,而是如何使空间与哈雷文化更好得相结合,彰显出岁月沉淀后哈雷应有的气度。

这是一栋独立建筑内部挑高为9.5米的大尺度空间,设计师把它分为两层,一层以哈雷机车和服饰、配件产品的展厅为主,二层为H.O.G.区和办公区域,在材质的选择上,除了建筑本身所需的混凝土钢结构以外,还搭配了一些天然的实木,木材来源于自然的生命,更好地为空间增加视觉上的温度,清水混凝土与木质相结合,突出机械的精美,对比鲜明,把哈雷机车金属的质感体现得淋漓尽致。

在建筑内部结构设计中,设计师强调了钢结构的裸露,把所有的机电部分巧妙隐藏在结构中,使空间更加整体简练,突显出材质本身的质感。


空间动线以入口为起点,围绕着大型艺术装置旋转楼梯展开,同时也是一层到二层的垂直交通,选择放置在建筑中央,同时避免了传统旋转楼梯中心承重的结构特点,将中心区域的面积尽可能扩大,以满足互动功能。



从核心区辐射展示区、吧台区、陈设区、休闲区,沿楼梯到达二层,可通过三处挑空实现上下空间的衔接与交流,成为空间情绪的出口,增加趣味性和互动性,楼梯设计的灵感来源于机车排气的部分外形及轰鸣韵律,极具艺术美感的弧度、夸张的曲线、金属质感肌理成为空间器度的核心表达。


在二层开放式休息区,阶梯部分亦为钢结构本身,满足各种聚会Party功能的同时更增添了人文情感,哈雷骑士们可以汇聚于此拟定出行计划和交流分享。





设计师王与将对设计的热情与执念,凝练在项目中,他说,“遥远观望不如并肩驰骋,好的设计也是一样,可以让众人参与进来,各有感受。”


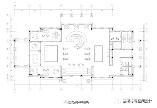
二层平面图

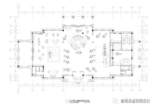
一层平面图
项目名称:哈雷戴维森旗舰店
设计公司:普斯格睿空间设计
主案设计:王与、王世波
设计范围:建筑+室内+展示+办公
项目地点:沈阳市全运路97号
项目面积:1500平方米
摄影:钟永钢
撰文:丰美

王与
普斯格睿空间设计 设计总监
(转自美国室内设计中文版)
网址:王与新作|哈雷戴维森旗舰店 https://www.jiaju82.com/news-view-id-627442.html

