中山橙家业主太忙没空看装修,交给橙家全包超预期!
对不少白领来说,装修是一个费钱费力费时间的事情。来自中山的业主陈先生就是一个典型的代表,据了解他从事特种电梯行业,需要24小时待命。陈先生平时工作比较忙,新房装修肯定没有精力监管工地想找全包,最后选择了中山橙家装修。
日前,陈先生家装修圆满完工,陈先生没想到找橙家装修可以如此顺利,特意写下分享文字,与大家分享在橙家装修时的心得和体会。

面积:130平方米
户型:4室2厅2卫
装修费用:14万(硬装)+5万(软装)
软装风格:现在简约
装修公司:中山橙家
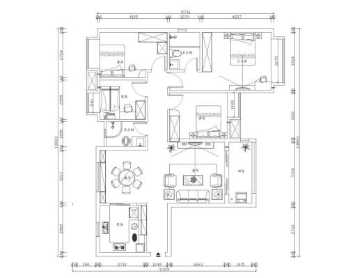
先来看看户型图,我家是4室2厅1厨2卫的小户型,套内面积130平,不过我们一家三口住已经很宽敞了。

本人从事特种电梯行业24小时待命平时工作比较忙,没有精力监管工地想找全包,目标非常明确。然后在网上预约了两家全包的装修公司、从官网预约五分钟后两个品牌的设计师都联系到了我,约了周末到店参观。此时我就把这两家品牌作为了对比的对象。橙家这边的刘设计介绍的很详细,了解到是碧桂园旗下的子公司也很放心,看了样板间施工也规范。对比另外一个品牌的网络口碑我果断选择了橙家、预约了量房、第一次到店看了一下价格也在预算之内,唯独的是我个人不急想拖一下时间在搞所以当时没有立刻签下来。过了一个月我就过去签了,水电改造完之后去看过一次,期间没有时间监督,硬装结束管家让过去验收都很满意。然后我自己本人也去宜家等家具卖场陆续购入家居沙发、也做了一部分的定制,整体效果搭配下来很满意。
软装搭配的是我自己买的家具、因为是大户型,所以也没打算要特别复杂豪华的软装感觉,简约风格家居造型简约,易打理易清洁,很符合我们家的期待。

我家客厅有不大,所以家具都不能太大件,说实话整个搭配的过程比较烦恼、后悔当时没有在橙家买一套软装,这样就少去了无谓的思考了。现在的整体效果还是很简单的,配上一些装饰品,风格还是挺明显的。配上部分的定制化产品空间的利用效率大大提升、利用好空间不浪费才是王道,一平方都不少钱了是吧!

餐桌的造型也很简单,但这样真的节约了很多空间,看起来也很温馨,颜色也不单调。

厨房细节做得很到位,橱柜也做到顶了,不用担心会积灰尘,储存空间也大了不少。

主卧和儿童房的布置十分简单,看起来很清新,虽然空间不大,家具也不多,但还是足够让人眼前一亮的。

今年7月已经搬进新家了,还是非常感谢橙家的付出。
网址:中山橙家业主太忙没空看装修,交给橙家全包超预期! https://www.jiaju82.com/news-view-id-633808.html

