清远新房装修选橙家怎么样?橙家设计师获赞收纳设计满分
清远新房装修选橙家怎么样?婚房装修怎么设计更人性化?刚搬进新房的清远罗先生对自家新房特别满意。第一次买房,装修前忐忑,装修后效果出乎意料。对比同时期买房装修的邻居,他觉得自己虽然第一装修,但是选对橙家全包套餐让他完美避开装修陷阱。整个装修过程,他最满意的就是设计师充分考虑他的个人需求,细致贴心。
案例城市:清远
建筑面积:101㎡
房屋户型:三室两厅二卫一厨
整装价格:12万+(含部分软装)
装修公司:橙家
设计经理:橙家清远万达门店 温欣建
罗先生的设计需求
罗先生购房时打算是把新屋作为婚房用,当时楼盘剩下比较小的户型,所以迫于无奈买了比较小的三房户型。可是考虑到常住人口较多,需要储物空间和休息区的空间比较多,于是对橙家设计师提出了4个改造需求:
①储物空间要大
②独立的客厅和餐厅
③房间比较小,需要充分利用位置
④尽量降低改造费用

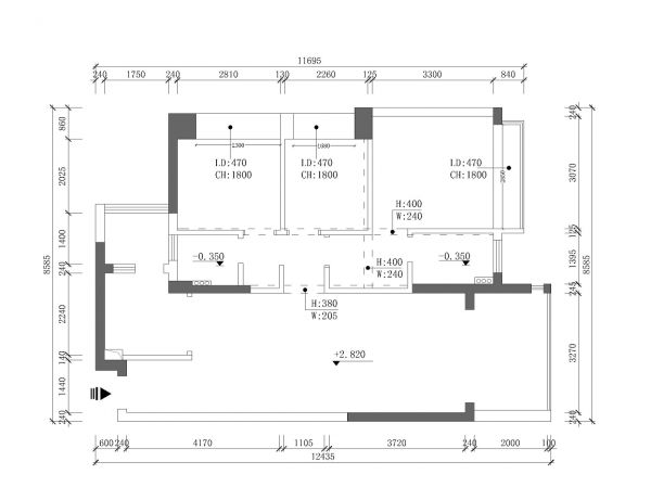
(原始户型图)
橙家设计师温先生的设计分析
从户型图可以看出来,整个房型还比较方正,但是以下问题比较突出:
①房间空间较小;
这个101㎡的房子是典型的“房间小,客厅大”,同样也没有明确的玄关和餐厅,所以结构合理划分是这次改造的重点。
②厕所空间小;
需要合理划分干湿区域,充分利用空间可以满足常住人口较多的情况下使用;

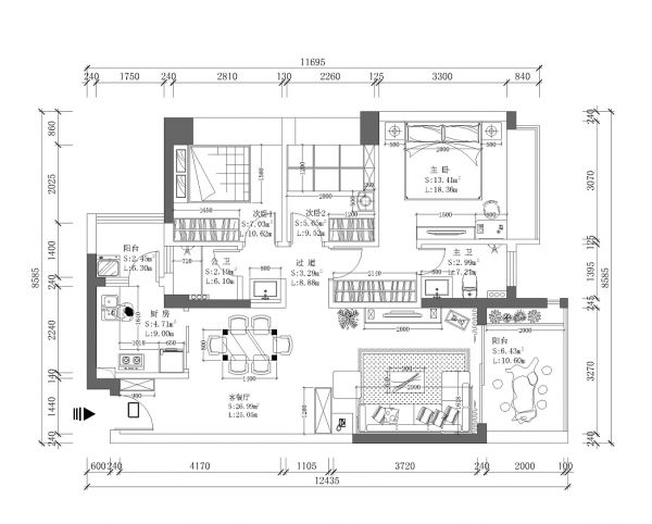
(设计师初步设计图)
每个空间设计前后的分析对比
客厅
业主原本整个空间并没有明确的客厅空间,完全丧失会客功能。所以,橙家设计师在最终设计师,给客厅加上一道半隔断的屏风,足够放上一张小沙发、一张茶几、一张单椅,就有了功能完备的休闲会客区。

卧室
中间房间床具使用了榻榻米。本来衣柜位置也不足的房间增加了足够多的收纳空间,罗先生特别满意橙家这个房间的设计。另外的主卧和次卧就按照常规的设计,设计和风格都偏向于现代简约风。

卫生间
橙家设计师将公卫采用外置浴室柜的设计方案。卫生间空间不大,这种设计充分利用厕所门外的空余位置,彻底做到了干湿分离,最大的作用就是上班时间和上学时间冲突时利用厕所不冲突。

罗先生近日已经搬进新房居住了。虽然本身户型设计不合理,但是经过橙家设计师的后期改造,3个房间物尽其用。本来担心收纳空间不够,但设计师将次卧改造成榻榻米后,就不用担心了。
所以,清远新房装修选橙家怎么样?第一次装修啥都不懂,罗先生特别感谢橙家设计师温先生耐心解答和根据他的个人实际情况给出最好的方案。一个不懂业主想法的设计师是没有灵魂的,罗先生对遇到橙家,遇到暖心的设计师暗自庆幸。
【本文属企业供稿,仅传递信息,不代表网易家居观点】
网址:清远新房装修选橙家怎么样?橙家设计师获赞收纳设计满分 https://www.jiaju82.com/news-view-id-634972.html

