第三届喜舍杯获奖名单公布,《都市优雅》小户型新生
喜舍杯·中国住宅设计总评榜是由互联网家居生态平台——艾佳生活、中城联盟、明源地产研究院联合发起,由国内首家设计版权经纪平台——喜舍创享出品。喜舍杯以“设计点亮生活”为理念,以“创建美好人居环境”为愿景,是首个聚焦住宅设计、对接万亿规模地产联盟组织的设计榜单。
第三届喜舍杯自正式启动之日起,收到来自全国各地设计师累计2000多份作品,经过严谨的评审,最终18份定向命题类作品、17份竣工实景类作品、6份创意研发类作品,在参赛的2000多份作品中脱颖而出,构成了第三届喜舍杯年度榜单。
在喜舍杯定向命题类别研发赛中,需要设计师针对90平米两室一厅的定向户型进行设计。今天小编和大家分享一套90平米的小户型设计案例,来源于第三届喜舍杯定向命题类年度优秀设计之一《都市优雅》,出自深圳设计师司淋元。

快节奏的当代社会,“家”不仅仅只是遮风避雨的港湾,仅仅满足住的需要是远远不够的,如何实现“住得舒适”、“住得精致”才是更为被关注的话题。
本案作品《都市优雅》,说文解字,仅从案例标题就能明白,设计师解决的正是“如何住得舒适、精致”这一问题。拥有八年室内设计经验的司淋元设计师,以“清爽视觉”、“舒适优雅”为核心出发点,在满足基本住家功能的需求上,更为注重空间情感的表达。
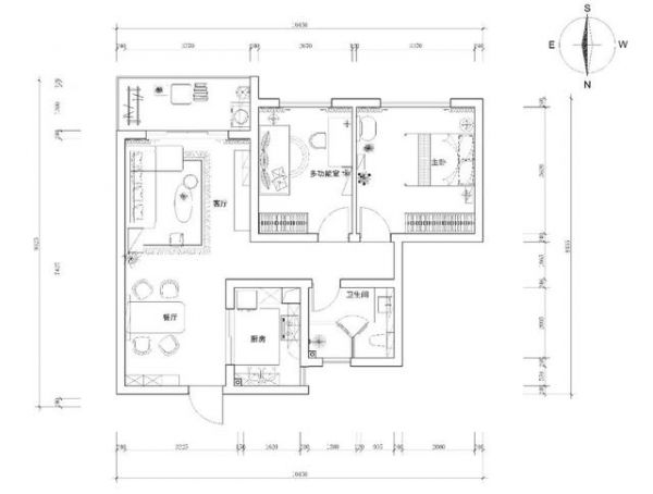
平面图

客厅


下班回到家,第一眼看到的便是客厅。沙发背景墙采用色漆进行大面积分块,增加了视觉上的延展与变化性,低饱和度的配色似一阵温和的风,吹散了一天的劳累。转角沙发的配置使空间更加的饱满,沙发旁的半高柜提供了一定的收纳储物功能,天花采用吊平顶+外装点阵筒灯方式,拉高了空间感。电视背景墙采用组合电视吊柜法的方式,增加收纳性与视觉层次感。
餐厅

玄关与餐厅相通,将小户型的空间利用得淋漓尽致。玄关采用“高柜+换鞋柜”的组合方式,提供多储物功能的同时,带来了更舒适的换鞋体验。餐厅配置轻巧款式的餐桌椅,增加了用餐空间的通透性。墙面简单的层板搭设,增加了一定的视觉装饰性。
厨房

美食拯救心情,厨房治愈生命。灰白和雾蓝的色彩搭配,低调却不失时尚感。转角橱柜满足了厨房多方面的功能需求,哑光烤漆面板增加了更细腻的质感,吊灯的配置亦增加一定的趣味性,小小的空间成为了美食的乐园。
主卧

卧室布局简单整齐,在素色系的基础上融入了低饱和度颜色的点缀。温柔的色调让人放松,营造出舒适优雅的睡眠氛围。床尾休闲区域的设置,不经意间增加了卧室的趣味,丰富了休闲体验。
次卧

一物多用,一房多能。小户型最为紧要的是对空间的利用,设计师将客房设立为多功能房,书房次卧合为一体,实现了一房多能。房间的一侧为独立的书写办公空间,为临时的工作处理和日常的阅读提供了良好的体验;另一侧是沙发床的配置,再一次体现了一物多用,节省空间的同时也满足了临时住宿的需求。
卫生间

卫生间大面积镜柜扩大了卫生间的空间感,淋浴隔断增加了一定的私密性与干湿区的分离性。
阳台

阳台是建立家与外界天地联系的小通道。在一侧靠墙侧设立洗衣机,同时附有吊柜及拖把池,满足日常生活使用需要的同时,也节省出了更多的空间。另一侧设有落地的升降晾衣架,中间区域所配置的户外桌椅、花花草草,可休憩可娱乐,为这条与外界联结的通道增添一份生活的气息。
“麻雀虽小,五脏俱全”。在本案例中,小户型最令人头痛的空间问题迎刃而解,小而全,整体调性和谐,软装搭配时尚,用色统一自然。“偷得浮生半日闲”,优雅和精致是一种对待生活的态度,将家打造成一个极具生活气息的空间,将所有的烦恼疲倦都隔绝在空间之外,去寻找到独属于自己与家人的那份自由与悠闲吧。
喜舍杯·中国住宅设计总评榜,希望用设计,把家变成一个真正有魔力,有爱意流淌的地方。
在接下来的时间,喜舍创享将联合获奖设计师,将他们的方案在「互联网家居生态平台-艾佳生活」上实现上线交易,未来将被上万业主选择,实现“一次设计,多次交易”的设计版权交易模式,真正让好设计走进千家万户,用设计点亮生活的美好愿景!
「关于喜舍创享」
喜舍创享是中国首家设计版权经纪平台。通过社群运营、赛事出品等手段,构建信息与信用高度对称的设计经纪生态。通过人工智能设计软件和设计版权运营,实现“一次设计,多次交易”的共享经济模式,推进地产3.0升级,力求让“好设计”走进千家万户,实现“设计点亮生活”的愿景。
「关于艾佳生活」
艾佳生活创立于2014年12月18日,由江苏一德集团和建业集团共同投资组建,开创互联网生态、共享经济、地产3.0三位一体的新模式。通过整合地产商、设计师、品牌硬装、品牌家居等社会资源,打造一站式家装服务平台。艾佳生活以开发商新房客户为切入口,联合地产商,共同为业主提供“定制精装+个性软装+设计+艺术品家饰+电器+……”的家装产品与服务,打造“不用拎包,即可入住”的一站式置家服务,让业主在置家过程中真正实现“省心、审美、省钱”。艾佳生活已与建业集团、当代置业、俊发地产、蓝光集团、旭辉集团、华远地产、泰达集团、宁夏中房集团等知名地产建立战略合作,目前业务覆盖范围已达全国17省,200余楼盘,已为逾10万用户提供家装解决方案。成立四年,艾佳生活订单额连创新高,公司估值增长130倍。荣获2018年独角兽企业、2018胡润大中华区独角、2018中国新消费产业独角兽。
责任编辑:chenyan6网址:第三届喜舍杯获奖名单公布,《都市优雅》小户型新生 https://www.jiaju82.com/news-view-id-644250.html