今朝装饰田园风100平
发布时间:2019-05-07 17:04
案例详情 小碎花是田园风格的典型代表,色素雅的花卉最能体现女主人的柔情,浪漫田园风格soltera印花家具,营造出一种浪漫温馨的家居意境。田园生活的特点是有平和的休闲空间,可以放松精神。这与家居设计的理念不谋而合。于是,充满着户外气息和大自然味道的田园风格家庭装修便被设计师引入了现代家居中。
餐厅餐桌椅整体采用白色系,简约干净。
儿童房墙漆采用蓝色系,活泼轻快。柜子采用绿色系清新自然。
卫生间整体墙体采用小碎花样式,整体符合田园风。
卧室采用浅色系,床头灯创意十足,温馨。
客厅采用木质地板,环保也不失时尚。
过道做了矮墙体,起到了隔断作用又没有妨碍客厅的采光。
厨房做了L型操作台,空间合理利用,外侧做了吧台,可以放置闲物,也可以偶尔喝茶闲聊。
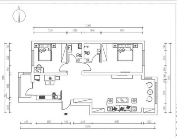
户型图整体规划合理,空间布局安排恰当。
网址:今朝装饰田园风100平 https://www.jiaju82.com/news-view-id-644682.html

