小平米简欧风
发布时间:2019-05-07 19:01
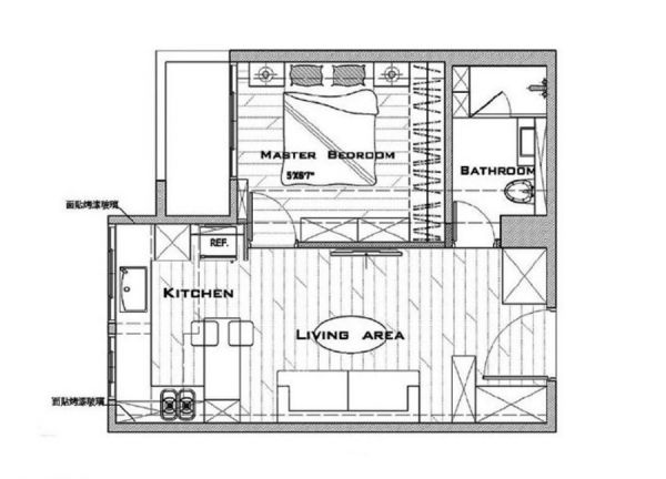
案例详情 本案例基本上基于以墙纸为要装饰面材、结合混油的木工做法。这种风格强调比例和色彩的和谐。人们开始会把一堵墙的上部分与天花同色,而墙面使用一种带有淡淡纹理的墙纸。整个风格显得十分优雅和恬静,不带有一丝的浮躁。

衣帽间的东西和家具都是英迈定制的

客厅的沙发 都是在宜家购买简欧风格的沙发

背景墙使用的是布鲁斯特的壁纸,性价比会高一些

窗户采用的老品牌凤铝的窗户,性价比极高

衣帽间的东西和家具都是英迈私人定制的

欧式的沙发凸显出简欧的风格,非常搭配

此户型,凸显出业主是一个有生活仪式感的人
网址:小平米简欧风 https://www.jiaju82.com/news-view-id-644700.html