享受秋日阳光 97平简约风
发布时间:2019-05-08 12:01
案例详情 秋日除去了春日的纷扰,夏季的浮躁,冬天的沉闷,沉淀了四季的温暖,尽情享受每一平米的秋日阳光。
一整面木饰面作沙发背景墙,温暖柔和,与一旁的橘色沙发也有所呼应。柜体风格仿台湾珥本风,虽然产出过程比较艰难,还好结果很美好。
简单的餐厅。背后的白色玄关柜用来放置女主人的鞋子。
整个空间以暖白为主,家具采用深胡桃木,窗帘以用中黄色柔和了整个空间。
墙面采用白色,深胡桃的木饰做了一个床头背景,使整个墙面更加活泼,窗帘颜色接近床头的木饰面板,使空间整洁干净温暖。
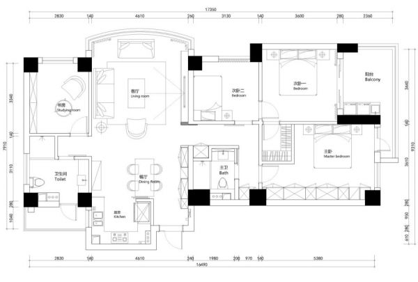
原装修房屋平面布置图
网址:享受秋日阳光 97平简约风 https://www.jiaju82.com/news-view-id-644816.html

