现代禅意极简风格实景_重庆渝北装修
发布时间:2019-05-27 14:23
重庆装饰公司俏业家作为全案设计领先品牌,特别采用“总监负责、主案实施、助理协助”的团队设计服务模式,为你的新家集思广益,个性定制私享空间,打造新房精品工程。本实景案例是重庆俏业家装饰qyj168设计师为业主的错层户型专门打造的现代禅意风格装修案例。
——重庆加州某小区案例内容详情——
楼盘:重庆渝北
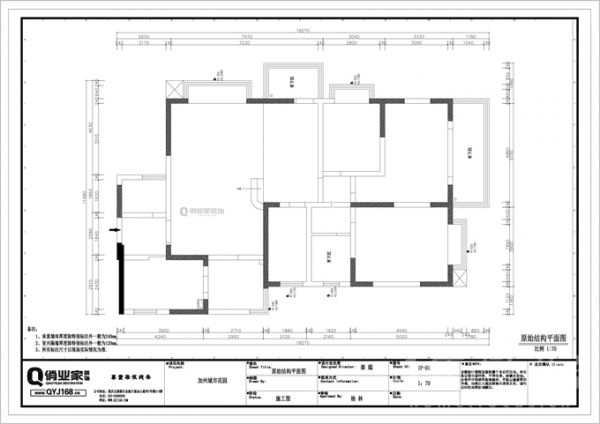
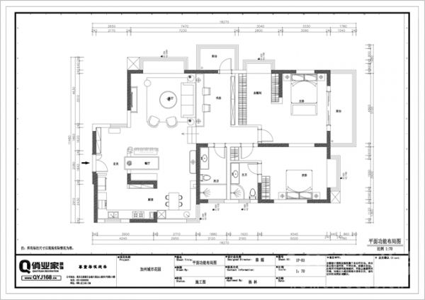
面积:150平
户型:错层
装修风格:{现代风格}现代禅意
设计总监:杨林
主案设计师:秦嫣
【业主需求】
这套房子完全属于偶尔居住的舒适性住房,是以享受,人文为主,糅合现代元素,禅意元素打造我们一个满意的家。

【设计灵魂】
设计师将禅意融进了现代风格中,精心打造了一个禅意家居环境。

【细节刻画】
1、客厅装修:无主灯设计,使得整体干净利落的墙面氛围更显得自然超脱,地面全铺波龙地毯,将一份淡泊之意表达得恰当好处。

2、餐厨装修: 由于该房的使用情况特别,选择开放式厨房设计不仅符合业主需求,也能提高空间舒适度。同时餐厅隔断的“月洞墙”设计也是深化现代禅意装修的点睛之笔。


3、卧室装修:软装还未齐全,更能清楚可见整屋造型。满吊顶可实现筒灯代替主灯,不仅仅局限于形式美,而更倾向于打造出业主对极简舒适卧室环境的向往。


4、卫生间装修: 卫生间干湿分离,以灰砖打造出有厚度却耐脏的实用空间。


看到这里,是不是有些了解现代禅意风格装修,免费获取俏业家装饰设计大咖同款设计,请关注俏业家装饰官网。
网址:现代禅意极简风格实景_重庆渝北装修 https://www.jiaju82.com/news-view-id-646657.html

