简美风格
发布时间:2019-06-13 00:01
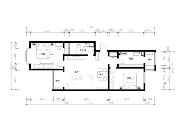
案例详情 根据客户男业主和女业主的要求综合设计方案,格局从新组合划分,使空间更加的合理及使用的舒适性。本案为2房1厅1卫一厨的家庭住宅.山水蓝维. 环境优美,平时夫妻两生活,要求突出温馨且不失时尚之感。本案以简洁明快的设计风格为主调,全面考虑在总体布局方面, 满足业主生活上的需求,主要装修材料为壁纸装饰饰面,以石膏线美含蓄的线条装饰玄关及各种景点,创造一个温馨,健康的现代家庭环境.环境室内设计区别于简单的装饰设计就在于环境艺术设计是从全局出发,而不仅仅着眼某一点或某一个墙面的装饰.利求达到统一中带有变化,和谐中产生对比的要求。

运用仿大理石瓷砖整体通铺采用美式造型橱柜,吊柜加上花线装饰,水盆下面采用镂空设计,营造出美式特有的效果。

根据设计要求,次卧床头靠背为软包,设计师配上美式实木床,方正的床头柜,墙体两侧配上米色壁纸,简洁大方,便于业主休息,整体色调和谐安静!

根据设计要求,将卫生间做成干湿分离,把洗衣机放到进门处以便于通风和使用,更大利用卫生间的其他空间。

主卧室则运用中性色彩的装饰,利用壁纸、乳胶漆、简美家具,灯饰,布艺、装饰画等,加上色彩艳丽的老虎凳作为平时休闲使用,打造成整个空间

根据户型分析,将客厅做成简美风格,将区域分割成方形灯池和错层吊顶,利用壁纸、光学、软装,石膏影视墙,产生更好的时尚效果。从色调上来说基本是3种,深咖色、浅咖色、米色,搭配跳跃色的沙发靠背,符合业主的心

房屋属于南北通透的户型,进门就是用餐区域为了装饰效果在进门右侧做装饰玄关也可以放鞋子,顶面用吊顶来装饰划分,分割出客厅和餐厅区域。
网址:简美风格 https://www.jiaju82.com/news-view-id-648212.html