新中式风
发布时间:2019-06-15 21:02
案例详情 此案例为新中式风格。新中式是传承传统中式风格的精髓,通过与现代潮流的对话碰撞而产生的的创新。在设计上延续了明清时期家居配饰理念,提炼了其中经典元素并加以简化和丰富,在家具形态上更加简洁清秀,同时又打破了传统中式空间布局中等级、尊卑等文化思想,空间配色上也更为轻松自然。

客厅作为待客区域,主要采用深色的家具以及硬朗简洁的直线条造型和白色定制柜,让空间具有层次感、装饰性。又符合追求的时尚感和实用性。

玄关柜增加使用功能、以大屏压花玻璃作装饰遮隔,分隔空间。又能保持整体空间的完整性和装饰性。运用局部的造型吊顶使得餐厅分区明确。从颜色的搭配和家具的配置,即有一种古色古香的感觉又不失清爽,十分舒适。

餐厅整体设计也客厅完美结合。

主卧室作为主人的私密空间,主要运用壁纸、圆形的造型吊顶、架子床来突出温馨舒适、浪漫的效果。墙纸是用的蓝色花纹的布艺,看起来很有活力。

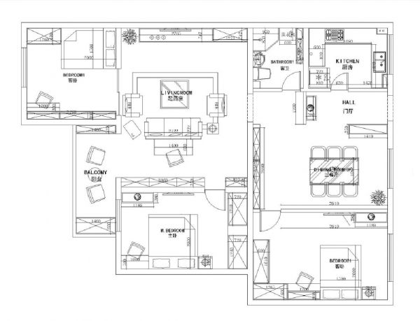
规划设计:整体空间布局规划图。
网址:新中式风 https://www.jiaju82.com/news-view-id-648654.html