天鹅堡141㎡ 美式
户主是刚结婚的小两口,喜欢充满浪漫温馨的美式风格。美式风格设计的浪漫温馨则一般体现在其家具上,不但表现在美式家具的材质上,还表现在它给予人的整体感觉上。在一些美式风格家具中,涂饰上往往会采用做旧的工艺处理。在这些家具的造型上,在保留了美式风格家具的古典色泽和质感的同时,时常还可以看到华丽的枫木滚边、胡桃木的镶嵌线、扭扣般的手把以及模仿动物形状的家具脚腿造型等。
该户型设计风格:美式风格
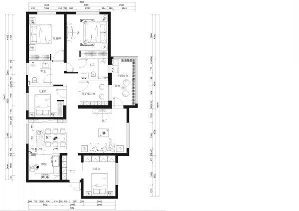
【装修户型】五室两厅一厨两卫
【装修面积】141㎡
【主材品牌】彩洲壁纸、陶一郎瓷砖、L&D瓷砖、欧派衣柜、唐鼎木门、法恩莎卫浴、能率热水器、西铝吊顶……
【户型及布局方案】




客厅作为待客区域,一般要求简洁明快,同时装修较其它空间要更明快光鲜,通常使用大量的石材或者木饰面装饰;美国人喜欢有历史感的东西,这不仅反映在软装摆件上对仿古艺术品的喜爱,同时也反映在装修上对各种仿古墙地砖、石材的偏爱和对各种仿旧工艺的追求上。总体而言,美式风格的客厅是宽敞而富有历史气息的。

美式餐厅以表现和体验美式生活方式为主,美式乡村风格,也可以成为美式田园风格,在餐厅设计上突出一种田园的自然之美。田园在美国是大庄园的形式,所以美式餐厅在一定程度上也反应这美国的这种生活风貌。

玄关的设计是整个家庭的设计浓缩,它在装修设计中起到了画龙点睛的作用,可以让客人一进门就感觉眼前一亮,并且也能让你感受到家的舒适,本案的门厅空间面积较大,在门厅处根据业主的生活习惯,定制了临时储物以及临时坐停休息的地方。方便业主在繁忙的一天中回到家感受到家的温馨。

卧室在色彩方面秉承了传统古典风格的典雅和华贵,但与之不同的是加入了很多现代元素,呈现着时尚的特征。地面采用深色木地板,给人一种沉稳的感觉。简洁的直线型吊顶配以暖色系灯光,营造出舒适典雅的视觉感受。在配饰的选择方面更为简洁,少了许多奢华的装饰,更加流畅地表达出传统文化中的精髓。为了给居室增添几分暖意,饰以精巧的灯具和雅致的挂画,使整个居室在浓浓古韵中渗透了几许现代气息。

这一款肉粉色为主打的色调的女孩卧室,再配上清新的柠檬黄和白色,整个房间显得优雅又有气质性格不同,适合的房间搭配方式也不一样。优雅的有优雅的范儿,活泼有活泼的范儿。本案女生房间设计也不例外,很符合业主家公主的性格特点。女孩子的房间软装最能体现她们的性格和爱好,不同的颜色、图案却能装饰出同一种风格,这就是软装搭配的魅力。
网址:天鹅堡141㎡ 美式 https://www.jiaju82.com/news-view-id-653225.html

