银河国际164㎡现代美式 | 注重舒适度,摩登现代感近在眼前


生活有时是平凡的,平凡得让你感觉不到她的存在;生活是平淡的,平淡得只剩下温馨的回忆;生活又是平静的,平静得只有你费尽心思才能激起她的涟漪。不妨这样想,今晨阳光明媚,我看到云朵飘了过来,她好像在招手,又好像在向窗前探头探脑,好像我有什么值得珍藏的宝贝。

SUMMER

案例赏析 | 银河国际小区-164平米-现代美式风格四居室 | 设计师:马涛
业主需求:功能,实用,美观设计理念:室内设计要点说明装修是自我导向的人格追求, 因此,在家庭装修中以及室内设计和规划,他们追求独特。创意整合当然是非常重要的,但一个合理的室内规划也是家庭装修中不可忽视的核心,如果创意和合理的室内设计完美整合,那么所谓的完美的家就属于你了。人们在追求自然,舒适生活的同时,也追求生活品味的提高。
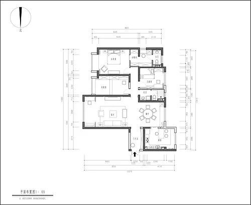
| 户型图

| 客厅

客厅纯正的美式风格,就像兰州的夏日一样清爽明媚!在整体空间布局上非常讲究家具的实用性,不求奢华和大尺寸,注重舒适度。大量自然元素的运用,方正的沙发+方正联画+太阳镜子+敦厚的茶几造型,都是典型的美式元素。再加上后美式特有的黄色图案抱枕,告别乡土气,走向摩登现代感的美式现代风就近在眼前了。

即使在灯红酒绿的都市中,也不能失去对自然美好的向往,那些深夜加班的日子,晚归到家的心情,总能在触碰到家的柔软时,放下一切防备;素白线条巧妙勾勒出我们简单的生活,为我们简单的时光点缀希望,不能说我们总要多热爱生活,但总要有一颗懂得欣赏和珍惜的心。可是有时光是拥有这些,就已经是很富有的生活了。

| 餐厅
相较北欧风格的简洁清雅,美式风格的居家氛围更加的宽大舒适,又兼容并蓄;白色的门框、窗框和踏脚线成就了典雅而质朴的美式风,呈现出宽敞大气的空间氛围。搭配一些精巧小饰品的装扮更显出浪漫情调来。

厨 房

在美式的吧台就餐是一种享受,非常随意自然,少了中规中矩的姿态,处处透着自在感,在家,可以随时切换场景;厨房与餐厅开放式一体化设计,更方便了家人之间的沟通交流。
网址:银河国际164㎡现代美式 | 注重舒适度,摩登现代感近在眼前 https://www.jiaju82.com/news-view-id-653297.html

