89平前海东岸现代风格装修案例,干净清爽
新家档案
项目地址:深圳 · 南山 · 前海东岸
项目面积:89平
项目风格:现代
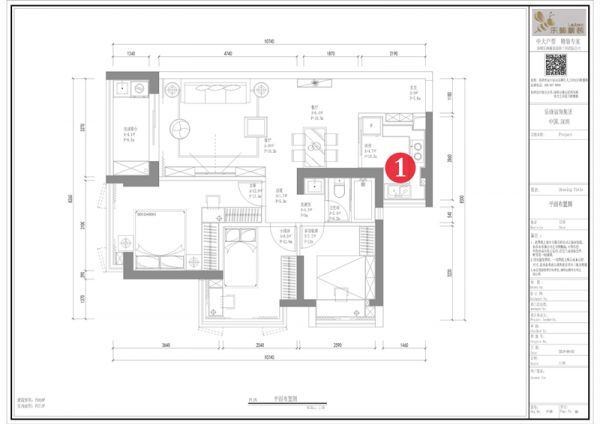
项目户型:三室两厅
工程费用:9万
=================================================
“储物”是本案业主的硬需之一,因为这套房子买的小,加上要做成三房,所以两位业主希望在硬装上尽可能提高小家的空间利用率。
设计师石工在家庭动区等公共区域,以及卧室等私密空间增设了大量的收纳区,一家人长久地住在这里也不会显得很杂乱。
项目风格我们一致选定了干净清爽的现代,它简洁的造型与色彩表达可以很好地柔和增设储物后的空间“拥挤感”。

不足之处:
① 厨房的操作空间太小,小阳台的利用率低

改进方案:
① 敲掉厨房、阳台之间的隔断,把小阳台划给厨房用


电视背景墙的储物设置是这个功能区的一大亮点。石工采用6开放、4封闭式的不规则柜体造型,打造出一整面的收纳柜,男女主可以用来展示新买回家的工艺品和书等。
黑与白在色彩上的高度碰撞,“撞”出了柜体的造型,立面的空间感也得到了凸显。

略偏北欧风的旁边摆了一张在宜家可以买到同款的小边几,搭配一盏线状台灯,点亮了窝在角落看书的无限可能。

主卧拥有宽敞的过渡区,所以石工在进门左侧增设了顶天立地的储物衣柜,并腾出一个小空间用来放女主的梳妆台。梳妆台背靠的地方同样做了衣柜,装下小夫妻俩的一年四季so easy~
话说,床头雾霾蓝背景墙上挂的那两幅相反视角的兔纸挂画好Q啊~

儿童房的马卡龙色床头造型,引出这个空间的童趣,墙面没有贴花哨的墙纸,仅采用多功能造型置物架点缀,可满足小朋友的日常储藏、展示玩具等需求。
最棒的是,石工把原本的户型死角变成了小朋友的小小阅(zuo)读(ye)角。

多功能房集看书休闲、儿童玩耍、储物收纳多种功用于一体,石工选择突出表达空间的储物性能。他与男女主讨论后,决定在进门左手侧设置顶天立地的储物柜,靠窗那一侧占了80%的“柜体”其实是一个伸缩床,需要使用时只需拉下床板。
=========================================
爱家,爱生活。要装修,上乐蜂,私人定制,与众不同。
网址:89平前海东岸现代风格装修案例,干净清爽 https://www.jiaju82.com/news-view-id-653860.html

