万国城 现代简约风
发布时间:2019-09-08 13:02
案例详情 一家五口居住,俩老人加年轻两口子还有12岁的小男孩,老人退休,夫妻俩为企业高管,喜欢现代简约风格。

黑白灰的搭配整个平顶造型,采用无主灯设计,让空间更加方正规整。沙发背景墙的异型处理,更突出现代风格的设计思想。

厨房采用地砖通铺,白色柜体,黑色台面,现代感十足。也使厨房看上去更加的干净整洁。

整体的层次设计在卧室里也体现出来了,床头背景大面积黑色几何方块的中间点缀了几处白色,一下子就点活了这个背景墙。

白顶,灰墙,深灰地,从上到下的一个过度,使空间更有层次。不同于寻常的餐桌椅,也是这个设计里边的一个亮点。

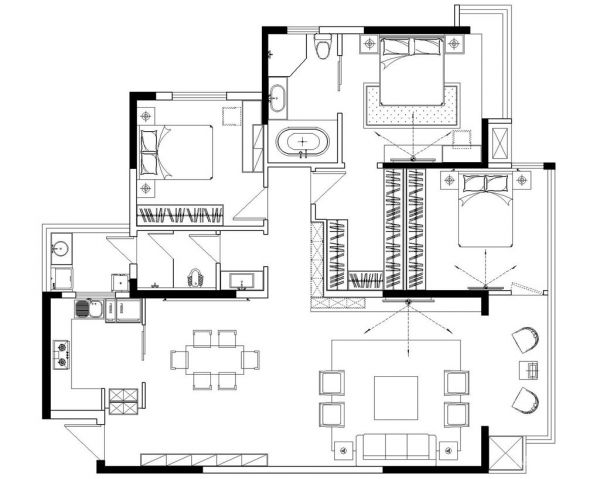
原装修房屋平面户型图
网址:万国城 现代简约风 https://www.jiaju82.com/news-view-id-663182.html