90后夫妻打造138㎡日式婚房,颜值爆表超漂亮!晒晒
今天分享的是一套建筑面积138平米的日式风三居室案例,房子以简洁的白色为主,搭配各种温馨的木色家具和造型,来营造出一种简约、舒适的家居氛围。房子整体的设计虽然非常简单,但给人的感觉却非常舒服,大概这就是我们所喜欢的家的样子。

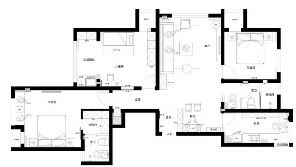
平面布置图

▲设计师在餐厅和入户门之间做上一个到顶的鞋柜,打造出了一个小玄关走廊。鞋柜的底部和中间留空,搭配另一侧的穿衣镜和挂衣钩,非常实用。

▲餐厅的餐桌也靠着鞋柜所摆放,卡座式的餐厅搭配墙面的置物架和侧方的斗柜,让餐厅内多了不少的储物空间,使用起来会更方便一些。

▲厨房内部是做了U字形的橱柜布局方案,把水槽放在靠窗的一些,灶台上方不做吊柜,再加上简单的配色方案,厨房整体给人一种温馨、明亮的感觉。▲客厅的设计也是以白色为主,搭配了一些木色的家具,电视柜的边上摆放一些绿植,可以让简单的电视背景墙看起来更不会那么单调。▲沙发和茶几的尺寸选择了刚好一家三口人使用的大小,留出更多的活动空间,用来摆放边几、摇椅和斗柜等,让客厅看起来更加宽松。

▲很喜欢这个通往卧室的走廊过道的墙面设计,在墙面做上软木板,然后挂上一些照片和小饰品,可以给人带来一种温馨感。

▲主卧室靠窗的地方做了一个小地台,方便屋主躺在这里看看书。床头背景墙上并没有做其他的装饰,简洁的白色和木色结合,搭配一些灰色作为调剂。▲儿童房的配色和主卧室基本上相同,儿童房的床是选择了高低床的款式,方便屋主陪伴孩子一起睡觉,或是为了之后的二胎做准备。

▲公卫的洗手台是被放在了卫生间的门外,更方便平时使用。设计师在这里做了半墙加上木栅栏的隔断,让它多出一些隐私性,看起来更加美观。
来源:有品家居
网址:90后夫妻打造138㎡日式婚房,颜值爆表超漂亮!晒晒 https://www.jiaju82.com/news-view-id-665038.html

