草桥美式风格
发布时间:2019-10-19 15:01
案例详情 现代美式也叫美式新古典,打破了传统美式风格的厚重和繁复,在硬装方面尽量做减法,家具软装也是轻巧精致加以金属元素的点缀,新古典摒弃了巴洛克和洛可可风格所追求的繁复和浮华,建立在一种对古典的新认识上强调简洁,明晰的线条和优雅,得体有度的装饰,色调也选用一些中性色,高级灰的运用使得整个空间更加时尚高级。

客厅白色的墙面搭上蓝色的沙发,显得协调有秩。客厅的主角不再是电视,足够的座位区,让彼此的情感交流才是最重要的!

走廊以大理石材为主,干净整洁,为其保留着隐私、不打扰,但是想要诉说,始终有人可以聆听。一张桌子简单生活,显得更具有深厚而丰富底蕴。

客厅的设计简单大气上档次。沉淀心绪的旅人就可以静静窝在此处,为其保留着隐私、不打扰,但是想要诉说,始终有人可以聆听。

卧室的设计简洁大气,美观以浅蓝色背景墙做衬。

儿童房的设计采用双层床铺设计,茶色的卧房,温馨而典雅。

次卧采用榻榻米设计合理利用空间,整个书房闲情逸致,劳累之余休息片刻。

卧室的设计美观又大气以浅色为主。不刻意区分主次卧房,让每个房间都有着自己的风格故事,这间暖暖大地色,像是丰沛的土壤孕育许多万物般,夜晚的休息,只为了让人精神充沛地迎

书房简洁以浅色调为主打色,显得格外安静。造让人心安的氛围,摆放上屋主的收藏书籍,害羞或想要沉淀心绪的旅人就可以静静窝在此处。

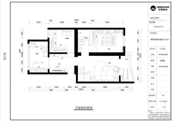
一层原有户型图设计改造。我们将故事刻划进空间里,使空间有着居住者的独特韵味;欧式的童话旅馆,是我们观察屋主后下的主题,时常旅游各地的屋主。

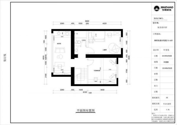
二层原有户型图设计改造。让屋主可以招待来自不同县市的亲友,少了作客时的拘谨,多了点人情味。
网址:草桥美式风格 https://www.jiaju82.com/news-view-id-670291.html