华澳中心 | 隐奢逸境
发布时间:2019-11-13 09:02
案例详情 华澳中心是北京最著名的外销公寓,从品质和位置来说,它是一个有吸引力的小区,华澳小区的亮点在于离公共绿地和运河距离极近,步行约两分钟可到,为业主散步休闲提供了方便。

客厅利用客卫和客卧的隐藏门的造型做电视背景墙。对称式分布整体造型,采用灰木纹木饰面进行装饰

平时也可以把门打开,使二层家庭室和多功能书房贯通,这样做的好处是,空间更加开敞通透的同时,有可以具有私密性。

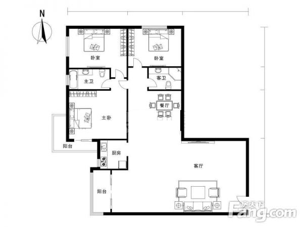
主卧与其门前的小门厅结合,改为一个大主卧,这样就可以将小休闲区的功能放到主卧中。

主卧的衣柜处做一扇隐藏门,通往SPA。顶面采用无主灯的设计,突出强调主卧自身的空间感。

SPA水疗区:二层主卫与洗衣房结合,改为一个大SPA水疗区。

书房的门设计为玻璃折叠推拉门,关上的时候配合窗帘,可以作为卧室使用;

玄关处放置屏风,结合衣帽间增设朝向玄关的衣帽柜和放置杂物的抽屉,通往衣帽间的门与衣帽柜的门统一

餐厅区域调整了吊灯的位置,使其与餐桌形成对位呼应;厨房门的朝向改向餐厅处,单开门变为双开玻璃推拉门

华澳中心是北京最著名的外销公寓,从品质和位置来说,它是一个有吸引力的小区
网址:华澳中心 | 隐奢逸境 https://www.jiaju82.com/news-view-id-675129.html