68平小户型公寓
发布时间:2019-12-08 23:01
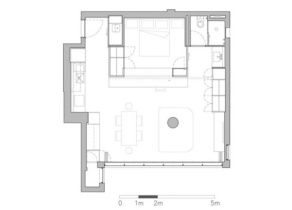
案例详情 这是一套建筑面积68平米的小户型单身公寓案例,房子本身的风格属于现代风,设计师在设计的时候,被客厅的这根大柱子给烦扰了不少的时间,加上隔断太拥挤,不加又太碍眼,最后围绕着柱子做了个360°的沙发,真的非常实用。由曲线和非对称线条构成,如花梗、花蕾、葡萄藤、昆虫翅膀以及自然界各种优美、波状的形体图案等,体现再墙面、栏杆、窗棂和家具等装饰上。线条有的柔美雅致,有的遒劲而富于节奏感,整个立体形式都与有条不紊的、有节奏的曲线融为一体。大量使用铁制构件,将玻璃、瓷砖等新工艺,以及铁艺制品、陶艺制品等综合运用于室内。注意室内外沟通,竭力给室内装饰艺术引入新意。

卫生间做了彻底的干湿分离设计,洗手台被放在了卫生间的门外,铜质的水龙头搭配大理石瓷砖,让这个角落看起来更加大气!

电视背景墙选择了留白的设计,侧方留出了部分的空间做上白色的到顶储物柜,这也是家里的衣柜,放在这里就不用占用卧室内的空间了。

餐厅和客厅之间也没有做隔断,这根圆形的柱子就是让设计师所发愁的那根立柱啦~把它包起来刷上白色的乳胶漆,弱化它的存在感。

用柜子来代替墙,对于小户型来说,是非常合适的设计,虽然少了一些隔音效果,但可以让家里多出更多的储物空间。

而餐厅的配色是以白色为主,简单的餐桌椅搭配一个到顶的餐边柜,设计师在餐边柜当中留出了不少的空间改成开放式的设计,书籍、厨房电器都可以放在这里。

书房是延伸卧室的床尾来布置的一张长书桌,底部的储物柜和抽屉柜分别存放不同的东西,把窗帘拉起来就可以把卧室给隐藏起来了。

整个房子是一个开放式的布局,走过玄关之后就是厨房、餐厅、客厅和书房,厨房的墙面铺贴了创意的瓷砖,搭配这中玫红色的柜门颜色,看起来非常独特。

然后设计师选择了围绕着它来做上一个全包围的沙发,深蓝色的布艺沙发下方是定制的底座,这张大沙发坐下10来个人也不成问题。

当窗帘打开的时候,就可以看到这个简单的卧室空间,同样是以白色为主,加入了相同的木质造型和柜子,让卧室看起来简洁而又舒适。

此户型整体方正,空间划分清晰明确,格局搭配得当,空间利用合理。
网址:68平小户型公寓 https://www.jiaju82.com/news-view-id-679832.html