740㎡欧式奢华大复式
发布时间:2019-12-13 11:00
案例详情 740㎡欧式奢华大复式740㎡欧式奢华大复式740㎡欧式奢华大复式740㎡欧式奢华大复式740㎡欧式奢华大复式740㎡欧式奢华大复式

装修效果图装修效果图装修效果图装修效果图

装修效果图装修效果图装修效果图装修效果图装修效果图

装修效果图装修效果图装修效果图

740㎡欧式奢华大复式740㎡欧式奢华大复式740㎡欧式奢华大复式

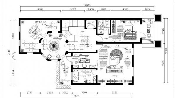
户型图装修效果图装修效果图

复式740㎡欧式奢华大复式
网址:740㎡欧式奢华大复式 https://www.jiaju82.com/news-view-id-680927.html