暖意北欧三居室 心都美化了
发布时间:2019-12-15 18:01
案例详情 秋也许就藏在金灿灿的稻穗上,也许藏在火通通的柿子里,也许藏在绿油油的菜地间。秋,收获的季节!金黄的季节——同春一样可爱,同夏一样热情,冬一样迷人。

客餐厅停留时间长,客人来访主要活动场所,注重整体档次及效果。现代简约,耐看实用。软装单纯而明快,明确而强烈。一体化吊顶,天花角线是对项目订制成品石膏线,有细节感,同时方便施工,节省造价。

厨房使用频率高,关注材料环保、操作便利、收纳功能齐全,燃气灶前不透钢面板方便清洁,关开插座,方便操作。

卧室为主人长时间停留空间,突出私密、舒适、温馨。材料选材,质感至上,纯棉的寝具及暖色的木饰面搭配。一撮金色麦浪般的小黄花,仿佛葡萄树上雀跃的黄鹂鸟,让人不禁想起了关于青春的回忆。

儿童房围绕小孩学习、健康、舒适考虑。童年的荡秋千。随记忆一直晃到现在。充满未来理想的帆船壁纸,充满了父母对孩子未来的期许。直挂云帆,乘风破浪!“我是要成为海贼王的男人”——采自《海贼王》自白,享受在海洋中翱翔。

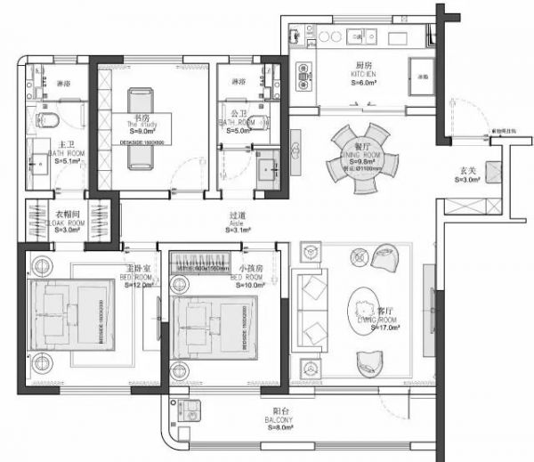
原装修房屋平面户型图
网址:暖意北欧三居室 心都美化了 https://www.jiaju82.com/news-view-id-681125.html