贵阳融创九樾府177㎡户型解析及软装设计方案
导读:做合理而准确的户型解析是开始软装设计的第一步,一个好的户型,不仅能够实现家居空间的有效利用,同时也能展现出家居的氛围感。本期小编针对贵阳融创九樾府B区177㎡户型为各位进行户型解析,并分享晗昱软装根据不同客户需求重新进行的平面规划与软装设计方案,一起来看看吧!
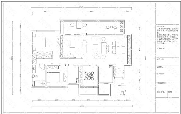
原始户型
户型解析:
优点:
户型设计方正简约,客餐厅连接观景阳台,视野豁然开朗,美景一览无余,布局紧凑无空间浪费,动静分区合理,主卧宽敞明亮设立独立卫生间、衣帽间,营造私人舒适空间。
缺点:
入户狭窄
厨房与生活阳台面积小
主卧衣帽间收纳空间不够

根据客户需求重新布局
客户需求:
1、新中式风格
2、现有空间结构不做改动
3、在入户区域增加有一个玄关
4、收藏品很多,最好能有个博古架
5、钢琴和古琴的摆放位置
6、书房、麻将室的布局
7、主卧衣帽间太小,不够用

软装设计参考方案
因为硬装部分结构已经定了,只需要在功能性上进行区分后细节上的调整,后期主要需要从软装的色彩,家具的造型,饰品上进行组合搭配设计。
设计难点·背景墙金属线条,后期搭配设计上会有局限性。
玄关
在交房之前,入户便已经做了一壁鞋柜,但为了更方便实用一下可以再加一个换鞋凳。因为一进门便能看到餐厅与阳台,让餐厅部分一览无余,为了营造新中式若有若现的神秘感,便在入户与餐厅之间做了一个玄关造景。

客厅
在客厅的摆放形式上便采用原本格局的3+2+1的形式,在家具上选用了轻便灵动的细脚木质沙发更具灵动性,与不同款型的圈椅,并搭配米色的布艺,给人以舒适的触觉感受,地面铺设一块地毯,丰富空间层次感的同时也能改善脚感。

因为客厅和餐厅是前后处在同一个空间内,便在沙发后放置一个半高的条案,与餐厅进行区分。

餐厅
餐厅放长桌更为协调大气,放圆桌的话直径不能太大,并且两边会比较空。在餐厅一旁放置两个博古架,可以放置业主的收藏品,中间以挂画或其他饰品进行点缀,但因为背景墙原有基础便是有做造型的,所以需要等到最后造型出来才能确定。

书房
书房以常规的形式摆放,并在角落处放置一架钢琴,因为业主后期阳台需要封玻璃,所以古琴可以放在阳台,并且在一旁设计茶区,更添韵味。

麻将室
麻将室可以在一整面墙打上一壁柜子或是买成品也可以,除了平常和亲朋好友休闲娱乐外,也能增加收纳空间。

"晗昱软装贵阳融创九樾府177㎡户型解析及软装设计方案8.png" width="1" height="1" style="border: medium none; margin: 5px 0px; max-width: 800px; width: 1px; height: 1px;"/>
主卧
主卧以山水为主题,将山水元素融入到空间内,烟雾朦胧,虚虚实实,让你仿佛身处山林之中,呼吸自然之气息。主卧配有独立衣帽间,但业主觉得衣帽间太小,收纳不足,这个可以在床边在做一壁衣柜,但因为背景墙造型原本就有的,这样的话背景墙就不对称了,需要打掉重新做。

想了解更多关于融创九樾府的软装设计方案,百度搜索“晗昱软装”,更多详情等着你!
网址:贵阳融创九樾府177㎡户型解析及软装设计方案 https://www.jiaju82.com/news-view-id-682520.html

