融创九樾府192㎡户型解析及软装设计方案
导读:户型可分好坏,好的户型不仅能够整个家居空间的到有效利用,同时也将满足居者的日常生活需求,并且户型的好坏对于后期软装搭配也尤为重要,通过与软装的相互融合,更能增强一个家庭的凝聚力,展现家庭氛围与个性化。本期小编就针对贵阳融创九樾府B区192㎡进行详细的户型解析,并分享晗昱软装根据不同业主需求重新布局的平面规划与软装设计方案,一起来看看吧!
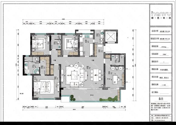
原始户型
户型解析:
优点:户型周正,动静分离,宽阔阳台采光充足,独立次卧连接阳台,亲近自然,享受美好生活,明亮主卧独立衣帽间让生活更精致,独立卫生间更具私密性,邻近两卧,凝聚家庭情感。
缺点:
收纳空间不足
转角处过多
窗帘盒过低,窗帘最好是不用带幔头的,否则太过压抑。

根据客户需求重新布局

设计方案及参考图
客厅根据原始户型图进行摆放,并且在沙发后增加了一个边柜,不仅区分了功能空间,明确了动线,这样也会显得整个空间更加的通透大气。因为原本的硬装背景墙是已经做了造型的,所以在不需要在进行过多的点缀,为了使得空间更为美观,饱满,在过道的墙面可以进行一些装饰,并且在一些角落使用绿植或是落地灯便能很好的营造浪漫温馨的生活氛围。

十米长的超长阳台,在以常规的绿植,休闲阳台,灯光的基础通过陈列设计的形式,让其绿植更有高低层次,错落有致,更为美观怡人。

因为原本的独立次卧因直接连通阳台,而业主的女儿又为高考生,怕打扰到孩子学习与休息,动静分离,便将原来的独立次卧改为书房。方便业主在平时办公和学习的时候,能够走出书房,放松心情。

主卧面积很大,所以床尾放床尾凳或休闲沙发,因为床头背景已有造型,所以所以在家具的选择上需要和空间搭配,进门有衣柜,将梳妆台设计到衣帽间中供女主使用。

女儿房以常规方式进行摆放,在家具的选择上以现场的为准,以免后期会挡住插头,并摆放书桌可供学习兼梳妆台。

客房的调性以中性色为住,因入住者不限男女年龄,所以不宜个性化,使用率较多的是父母的话便于父母喜欢的感觉进行设计。

想了解更多关于融创九樾府的软装设计方案,百度搜索“晗昱软装”或微信添加,更多详情等着你!
责任编辑:ronghuanfen网址:融创九樾府192㎡户型解析及软装设计方案 https://www.jiaju82.com/news-view-id-682732.html