现代轻复古混搭风格公寓装修图片,分区惊艳
发布时间:2020-01-17 14:02
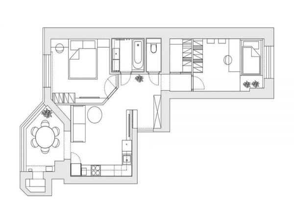
案例详情 本案例为现代简约风格,简约、轻快是设计的核心理念。硬装上没有太多的花样和繁杂的造型,设计师对色彩的搭配生活对空间结构的安排。简单的室内装修,时尚的家具搭配艺术挂画,这套浪漫的两居室充满鲜活的气息。一组功能分区惊艳的66平现代轻复古混搭公寓装修.客户夫妇是一对年轻的小两口,希望整体空间深色安静。通过跟设计师的沟通,格局做了很大的改动。

客厅跟玄关共用了一个电视背景墙。色调温和朴素,不张扬,不做作。

玄关区域,设计师通过侧面隔断的设计,加入了电视背景墙。

一开门设计师做了绿植软装装饰。兼具展示功能和美观效果。

厨房是经典的黑白配,白色实木橱柜搭配黑色台面,颇具气质。

餐厅安排在阳台,餐桌小巧而精致,追求功能和形式的完美统一。

一个卧室暂且用作书房,还要留足够大的空间以后利用。

主卧延续了客厅的色调,简洁的白色,加上蓝灰色的沙发,空间安静。

厨房卫生间相辅相成,又各自独立。马桶单独和脸盆淋浴分开,实用性很强。

卫生间空间虽小,但不显得拥挤。淋浴和洗漱安排在一个空间,非常方便使用。

餐厅安排在阳台是客户非常喜欢的部分。户型方正,南北通透。
网址:现代轻复古混搭风格公寓装修图片,分区惊艳 https://www.jiaju82.com/news-view-id-686578.html