素雅的美式风格!
发布时间:2020-01-17 19:00
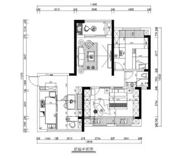
案例详情 本案小区为回迁房改造,该居室为三室一厅一厨两卫,小区居住的群体主要为工薪阶级。根据业主的需求,设计师把风格定位为美式风格家装。希望打造舒适的生活方式,为业主打造适宜的居住空间。同时业主要求空间带有活力的氛围。所以在设计中大胆的运用了跳色,很好的调节了整个空间的色彩搭配问题。

点事背景墙也是采用了嵌入式的衣柜的设计,是设计的一大亮点。

客厅空间主要以白色和莫兰迪色为主,加以黄色作为跳色,让空间更加活力。

餐桌的吊顶灯从远处能异地时间吸引人的眼球。

餐厅设计成卡座形式,可以更加节省空间,椅子采用卡通椅背,让空间更加灵动。

儿童房采用了一部分业主家孩子的喜好进行设计。让孩子可以更加喜欢在自己的小天地生活。

定制的打衣柜,能很好的解决储物的问题,满足了日常的需要。

主卧室以浅色调为主,让空间更加安静及舒适。

厨房墙砖以白色为主,地砖白色与黑色错位铺贴,让空间不再单调,橱柜采用美式线条,凸显特色。

卫生间采用蓝色墙砖,让整个空间看起来十分的清新。

平面布置图 楼盘:紫南家园 户型:三室二厅 装修风格:美式风格
网址:素雅的美式风格! https://www.jiaju82.com/news-view-id-686679.html