空间的极致利用
发布时间:2020-01-18 00:01
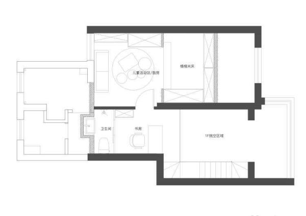
案例详情 一对可爱的小夫妇,一个调皮的捣蛋鬼,和一个蹒跚学步的小朋友。这样的四口之家,和一个强势老娘的存在,每天在这个小房子里发生着很多有趣的事。所以对于这个房子的空间利用成了最关键的一个点。当时接下这个项目的时候,这对小夫妻瞒着父母找到我,希望我可以给到他们一个可以征服爸妈的方案效果,当然最终也算不负厚望。顶楼带阁楼的户型,接下这个案子的时候就知道,会是个充满乐趣的过程。为业主从空间规划,收纳规划,视觉偏好各方面做了比较细致的考虑,最终就为了一个目的:让业主爱上回家!~

客厅处利用整个房子的层高优势做了挑空,所以从顶上悬挂吊灯作为主要照明,靠墙做了一排导轨射灯,可以达到洗墙效果。因为是顶楼朝南,所以也是的引入了天光,加上整个明亮的色调,所以不论白天还是夜晚,家里都

通透,敞亮对于采光较差的老公房是最重要的一个点。

进门处做了个换鞋凳,上方做挂钩可以挂包包,帽子等。还有放置临时衣物的收纳,悬空处也是方便直接拖鞋换鞋。

这个视角看过去,看得出整个玄关这块墙体打通之后,引入采光,视觉感受放大很多。

卧室的收纳可以说是非常强大了,顶天立地的衣柜,加上床后靠柜。床底也是用了百隆的自弹轨道,用于抽屉。不过我要吐槽一下这个床垫。。业主一时冲动,买了这个巨舒服但是巨厚的床垫,既然够舒服就有理由被原谅了~

橱柜部分还是采用了比较经典的黑白简约款,暗拉手一来好看,二来也可以防止碰撞到。这里要安利个这个悬挂式微波炉,可以直接顶面螺丝固定在上柜底板上。设计师本人兼摄影师无意中入境,忘了码了,不好意思哈哈。

儿童房使用了上床下柜的设计,这个小楼梯的正面与侧面都是可以用于收纳。床下藏了你不知道有多少的衣服。功能依然强大。

吧可以敲的墙都敲掉,厨房处改成玻璃隔断,直接就把进门处的视觉感受无限放大,让业主进门完全感觉不出这是个小房子。有种小家变大的感觉。一家四口,自然东西也会越来越多,从长久考虑,所以整个房子的收纳可以说是

二楼基本上完全就是大宝的个人领域,学习、娱乐、休息和洗浴各不误。小小阁楼作为自己小世界,应该是很多朋友小时候的梦想吧。
网址:空间的极致利用 https://www.jiaju82.com/news-view-id-686705.html