懂得慢下来,才会发现生活的美。
发布时间:2020-01-18 04:00
案例详情 本案例的业主十分懂得生活,关于房子的装修风格夫妻两人已经做了不少功课,女主人喜欢无印良品风格,男主人喜欢简单一点的设计。设计师与之几番沟通,一起逛建材市场,最终将风格定位清新自然文艺范的原木MUJI风格,设计采用化繁为简的方式,软装上现代与无印良品混搭勾勒出温馨明快的画面,住在里面享受每一天的慵懒惬意生活。懂得慢下来,才会发现生活的美。

客厅电视背景墙选择了带灰调的木饰材料,电视柜茶几以及单人沙发的木调协调温柔。

灰色调沙发和大大的地毯盖毯,提升了客厅空间的舒适慵懒氛围。

沙发背后的半墙开了一个折叠窗洞,侧面墙做了内嵌收纳架,里面是书房工作区,半开放设计让两个空间通透感更强。

简约淡雅的入户玄关,墙面挂置了一个木架挂饰,平时用来临时放帽子包包非常不错

旁边木框试衣镜美观实用,下面放上同色系换鞋凳非常方便。白色玄关收纳柜,简直有隐形放大的效果

餐厅区域放在厨房外面,木质餐桌椅非常有质感,旁边窗户下做了定制餐边柜,通体的白色一样有隐藏放大的效果。

厨房是非常经典的灰白配色,灰色调墙地面,利用现代质感的白色橱柜提亮,极简风正流行

结合床单被套,整个卧室通过灰蓝和木色白色的碰撞,散发出浓浓的慵懒气息。

卫生间干湿分离,洗手台、马桶和淋浴房分别置于三个独立空间。

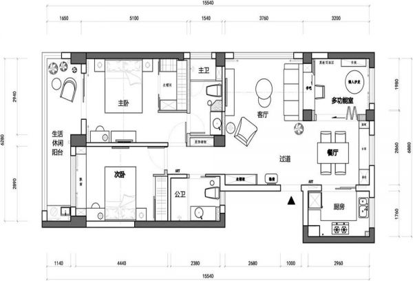
户型整体方正,设计师没有做很大的格局改动。
网址:懂得慢下来,才会发现生活的美。 https://www.jiaju82.com/news-view-id-686716.html