今朝装饰欧式风格装修

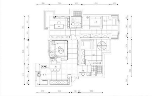
考虑到业主对空间的需求,设计师决定用投影仪代替电视用来节省电视对空间的占用,同时可以直接打造高档的影院效果。既然不需要放置电视,那么以往的电视墙便被改造成装饰柜,业主很喜欢这里的设计,一方面可以解决部

设计师为了让业主能够从视觉上体验到大的空间,将客厅的视觉中心设置在墙面的3D延伸墙纸上,这种墙纸会扩大人的视觉延展,赋予客厅更大的空间感,北欧沙发、灰色地板与木质墙板构建空间简约风,装饰柜多用纯色,保

沙发背后的落地窗,能够带来很好的通风效果和采光。为了让套房效果更加明显,设计师在客厅通向书房和卧室的门使用的是隐形门,即是房门不会对客厅的视觉空间产生影响,房门直接融入墙面,让客厅从视觉上形成封闭小空

餐桌布置偏向于浪漫的欧式风情,考虑到业主夫妻二人暂时还没有小孩儿,所以一个浪漫的餐厅无疑是夫妻保持甜蜜的重要选择。墙面采用的是拼凑的白色复古墙砖和大面积的空调融入到一起,让空调在整个空间中不显得那么突

门厅到厨房的这段墙壁被改造成为储物柜,为了物尽其用,设计师决定选用镜面储物柜,提供给业主储物,同时让业主在出门时可以通过镜子检查自己的着装仪表。将冰箱和微波炉嵌入墙体,平整且节省空间,让本身不大的厨房

主卧室以浪漫的蓝色为主色调,从床到墙壁到窗帘,配上金色复古的化妆椅,从色彩空间上营造夫妻间的小甜蜜。化妆台的金属感来源于订制的艺术手机造型,屋内采用后现代圆球简约吊灯,程度扩大灯光的照明角度同时灯

在房间内设置的折叠跑步机,在不用的时候也不会占据空间。为了避免房间纯色带来的枯燥乏味,设计师在衣柜颜色的选用上决定使用和地板颜色相呼应的灰色,灰色耐观赏房间也不显单调。

书房是业主夫妻比较注重的房间了,一是业主夫妻有着大量的藏书需要置放,二是书房需要留下合理的空间和舒适的色彩搭配保证他们可以拥有很好的阅读体验。书柜用的是让人清爽的深蓝色,采用的是贴墙包围式,在程度

儿童床的设计也是偏向童趣的双层床,儿童房的闲置空间比较大,也是方便以后孩子有着足够的活动空间,还设置了一个书柜,可以作为藏书用还可以给孩子很好的文化熏陶。

简欧风格具有很强的实用性,其 特点是顶、壁、门窗等装饰线条 变化丰富却不复杂,加之罗马柱、 壁炉、哑口和白色木格等非常有 代表性的欧式元素。
网址:今朝装饰欧式风格装修 https://www.jiaju82.com/news-view-id-686761.html