时尚的美式风格!
发布时间:2020-01-18 11:01
案例详情 业主是年轻的小两口,年轻有活力有气质是两人的特点,平常工作都繁忙,这次装修就以舒适温馨轻松为主。结合两人的气质最终以简美风格来定位。一直觉得“美式”是所有家居风格中,最闷骚、最温馨、也是最随意的一个。它的矛盾之处在于,它用及其简洁干练的风格,装出高雅的内在气质,既不显的过于冷硬,也不显得华丽浮夸,像一个端庄大气的大家闺秀,给人如沐春风的感觉。

客厅空间主要以白色和莫兰迪色为主,加以黄色作为跳色,让空间更加活力。

儿童房采用了一部分业主家孩子的喜好进行设计。让孩子可以更加喜欢在自己的小天地生活。

厨房墙砖以白色为主,地砖白色与黑色错位铺贴,让空间不再单调,橱柜采用美式线条,凸显特色。

餐厅设计成卡座形式,可以更加节省空间,椅子采用卡通椅背的形式。

具有活力的橙色给浅色的客厅空间增加了一丝活泼。

主卧室以浅色调为主,让空间更加安静及舒适。

餐厅的吊灯以及旁边的储物柜是设计的一大亮点。

白色的床头柜和床头灯和整体空间的浅色系很好的融合在了一起。

卫生间采用蓝色墙砖,让整个空间看起来十分的清新。

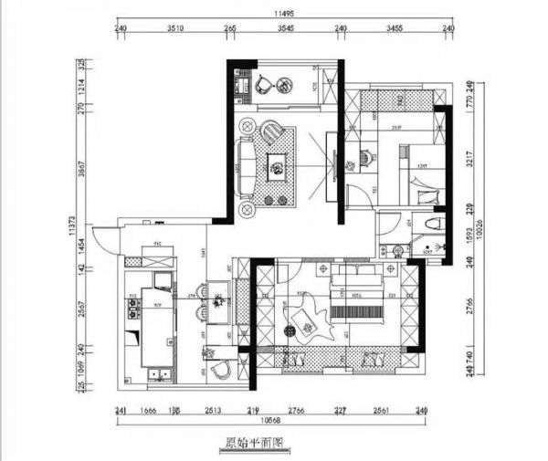
平面布置图 楼盘:紫南家园 户型:三室二厅 风格:美式风格
网址:时尚的美式风格! https://www.jiaju82.com/news-view-id-686763.html