美式田园案列
发布时间:2020-02-05 20:00
案例详情 家是一种归宿,是心停泊的港湾,给人一种温暖舒心的感觉,此案例为美式田园风格,家具特点具备简化的线条,粗犷的体积,简洁明快,方便打理,在软装摆设上面对艺术品的选择比较考究,业主倾向于选择仿古地砖,脚感上比较舒适,后期家具摆场的布艺沙发与金属边框的挂画与绿植相得益彰,让业主感觉到舒适.自然.大气的感觉。田园风格在美学上推崇自然,结合自然在室内环境中力求表现悠闲,舒畅,自然的生活情趣,运用木质,石材,碎花等材质质朴的肌理,室内放置绿化,创造自然简朴高雅的氛围。

家是一种归宿,是心停泊的港湾,给人一种温暖舒心的感觉

此案例为美式田园风格,家具特点具备简化的线条,粗犷的体积,简洁明快,方便打理

在软装摆设上面对艺术品的选择比较考究,业主倾向于选择仿古地砖,脚感上比较舒适

后期家具摆场的布艺沙发与金属边框的挂画与绿植相得益彰,让业主感觉到舒适.自然.大气的感觉。

田园风格在美学上推崇自然,结合自然在室内环境中力求表现悠闲,舒畅,自然的生活情趣,运用木质,石材,碎花等材质质朴的肌理,室内放置绿化,创造自然简朴高雅的氛围。

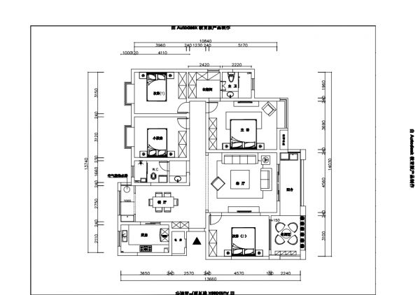
美式田园案列空间图

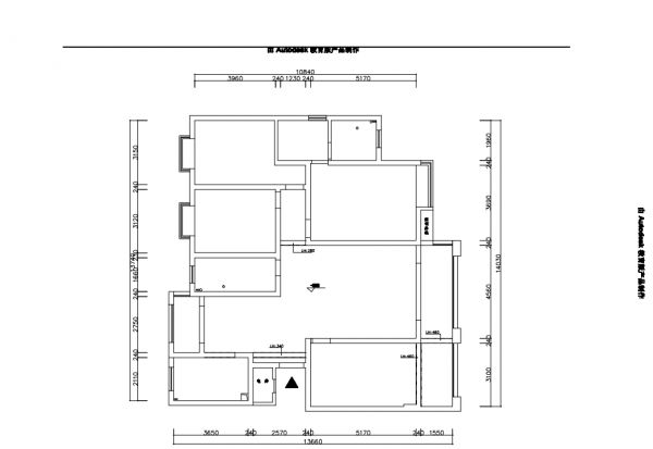
美式田园案列布局
网址:美式田园案列 https://www.jiaju82.com/news-view-id-687915.html