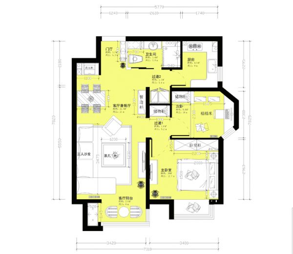
家居美图 | 国风美仑 78 平米现代风格10万打造78㎡温馨之家 (4)张
发布时间:2020-03-04 06:17

2009年曾荣获北京优秀设计师
2009年3月中国春季室内美化家居设计优秀奖
2010年被邀请北京7电视台生活+特邀嘉宾。
2010年为瑞丽,时尚家居的优秀嘉宾。




业之峰装饰北京分公司东四环峰巢精品设计中心前身为东五环红星美凯龙设计中心,成立于2012年,店面位于朝阳区东南四环大羊坊路333号。东四环峰巢精品设计中心由众多优秀设计师组成,其中多名设计师参加《交换空间》、《夜线》、《非常设计》等电视栏目的录制。设计师才思敏捷,设计独特,擅长各种风格设计,将用最贴心的服务,为您打造一个属于您自己的完美之家。东四环峰巢精品设计中心每一位员工,真诚期待您的光临与指导!
更多案例网址:家居美图 | 国风美仑 78 平米现代风格10万打造78㎡温馨之家 (4)张 https://www.jiaju82.com/news-view-id-691353.html