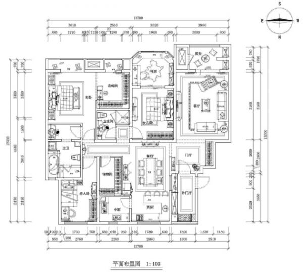
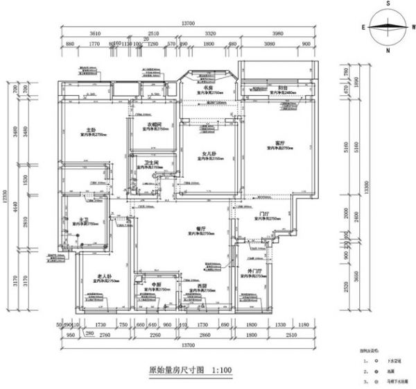
家居美图 | 奥斯博恩庄园 150 平米美式风格美式风——奥斯博恩庄园 (5)张
发布时间:2020-03-05 13:13






中心设计院位于公司总部,地处汉中门虎踞南路9号(汉中饭店旁边),现已拥有多名主任级设计师及优秀设计师,他们主要针对设计要求较高、设计风格独特的中高档客户进行服务,其作品主要分布于中海赛纳丽舍、湖景花园、金陵大公馆、皇册家园、郎诗国际等南京的各大小区。中心设计院还以业之峰独有的完整家居服务模式为依托,在不断沟通与交流过程中,建造一个最适合于客户现实与心理需求的温馨居所,让客户省心省力做装修,享受到一流的“蓝钻”服务。
更多案例网址:家居美图 | 奥斯博恩庄园 150 平米美式风格美式风——奥斯博恩庄园 (5)张 https://www.jiaju82.com/news-view-id-691609.html