新世界丽樽--现代简约
发布时间:2020-03-11 09:02
案例详情 本方案是现代风格,以简洁明快的设计风格为主调,简洁和实用是现代简约风格的基本特点。设计师采用留白的设计手法来营造出空间中的个性与宁静,在把握好整体房间空间感的同时,选择营造居室居住环境的舒适度也是至关重要的。

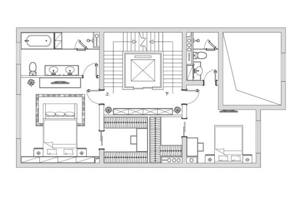
摆放几件造型、色调都不复杂的家具,放上一两件喜爱的装饰品,一间自然简洁,富有时代气息的卧室就诞生了。

以冷调灯光为主,卧室的色调是用偏中性色彩来装饰的。卧室的墙面和地面的颜色协调一致,让卧室空间显得更宽敞,玻璃门衣柜来装饰墙面的景点。更体现现代简约的之感。

现在卧室简约风格体现时代特征为主,没有过分的装饰,一切从功能出发,讲究造型比例适度、空间结构图明确美观,强调外观的明快、简洁。体现了现代生活快节奏、简约和实用,但又富有朝气的生活气息。

现代简约风格书房颜色并没有凌乱感,即使是鲜艳的色彩搭配,也有一种简洁的味道,也常采用统一色调的设计方式以达到空间整体感。

卫生间不是一个只看外表的地方,用的舒心才是王道,这款卫生间简洁大方,淋浴区用玻璃门隔开,清爽干净,各司其职,一目了然。

空间布局的简约实用,把卫生间间融入了卧室,非常使用方便,体现了现代生活的精致简约。

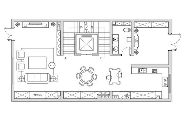
整体布局设计的简洁明快,区域划分非常清晰,流动线条自然舒服,使空间凸显了艺术感。

空间布局功能齐全,餐厅和客厅没有用墙隔断,加强了空间的整体性,使空间更加流畅。
网址:新世界丽樽--现代简约 https://www.jiaju82.com/news-view-id-692411.html