50㎡下的精致生活
发布时间:2020-03-11 10:01
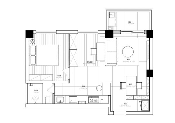
案例详情 将新与旧来结合是这次改造最主要思考的方向。在这里有便利的交通、熟悉的街坊邻居以及对“家”的记忆,在与屋主交谈过程中,也深知她对这里的感情,空间不仅仅是空间本身,它更是人置身其中的情感容器,以及人与人亲密沟通的精神窗口。空间分配也进行了细分,进门增加了玄关的区域,由于老房子管道较多,橱柜的操作台面面积不够,增加了一个小吧台区域,既满足了情调又可以增加台面使用率,将原来的客房墙体直接打掉,做了一个开放式空间,把衣柜梳妆台外置,还可以做工作阅读区,达到了“麻雀虽小,五脏俱全”的效果

个住宅以白色与温润的木质感作为主要的色彩基调,旨在传达家的温暖,让家里充满阳光,给居住者一个温馨舒适的空间体验

入门玄关区域置入了一个温润的木盒子,进门区域的玄关与内部空间形成了鲜明的对比

餐厅作为厨房与客厅的连接,在色调和材料的使用上,保持了空间的连贯性,同时,吊灯与餐椅恰到好处的相呼应,变化中不失统一。

客厅的设计围绕生活展开,地面采用实木地板与深灰色砖结合,接近生活的朴质营造家庭氛围

在卫生间空间功能分布上,把洗手台外置,利用置顶的黑色透明玻璃将厨房洗菜盆与洗手盆隔开,形成两块不同区域,节省空间之余也互不干扰。

客厅没有繁杂的装饰,使用纯白色涂料的电视墙,木质与空间互相呼应,电视背景墙通过平面整洁的方式与整体木搭配,令空间层次清晰,并使视觉感受更加宽敞。

主卧以浅灰和白色为基调,自然清新,跳跃而复古的黄色床靠背,没有多余的繁复造型。纯白色的床品搭配表达温婉闲适的现代都市生活质感,

设计师侧重生活,以简约的手法勾勒空间,没有繁冗多余的色调和修饰,简单大方。格局上更讲究人性化与思维化,呈现出一种规则美。

干湿分离把空间合理的利用起来互不干扰,通透大方

户型主要是单面采光,设计师将公共区域打开,做成LDK式全开放空间,一点都没有浪费穿过窗户的阳光,将卫生间与厨房的位置进行了调整
网址:50㎡下的精致生活 https://www.jiaju82.com/news-view-id-692427.html