龙湖景粼原著--现代简约
发布时间:2020-03-11 11:01
案例详情 本方案是简约风格,以简洁明快的设计风格为主调。通过黑白灰的色调搭配营造出现代简约的特有美感,现代简约的装修设计也让室内不需要多余的装饰元素。在装饰上做减法,可以让居室空间显现出时尚舒适的居家氛围。

现代客厅设计应该简约而不简单,空间的细节处理一定要精致,布置采用明快的浅色调,会显得更加干净利落。

空间的划分不再局限于硬质墙体,更注重会客,餐饮,学习等空间的逻辑性关系,通过布局来表现餐厅与客厅的划分,这种划分又能表现出灵动性,兼容性,流动性。

现代简约卧室不推崇繁杂的装饰,饰品的使用并不多,但每一个都别具一格,而且造型、线条简单,却极具个性化。现代简约风格会根据整个装修综合考虑,以减少视觉负担。

现在卧室简约风格体现时代特征为主,没有过分的装饰,一切从功能出发,讲究造型比例适度、空间结构图明确美观,强调外观的明快、简洁。体现了现代生活快节奏、简约和实用,但又富有朝气的生活气息。

卫生间构造上的小创意可以室完美地展示出它的空间应用,让小空间也更加具有扩张力和延展力。从而使整个空间更加具有层次美。

强调空间的整体性,风格的统一性。根据不同功能对相应的房间立面作出处理方案,提倡自然简洁和理性的布局。

空间布局上避免空间的狭窄、压抑感,繁杂、老套、呆板的造型,强调空间的简单化。

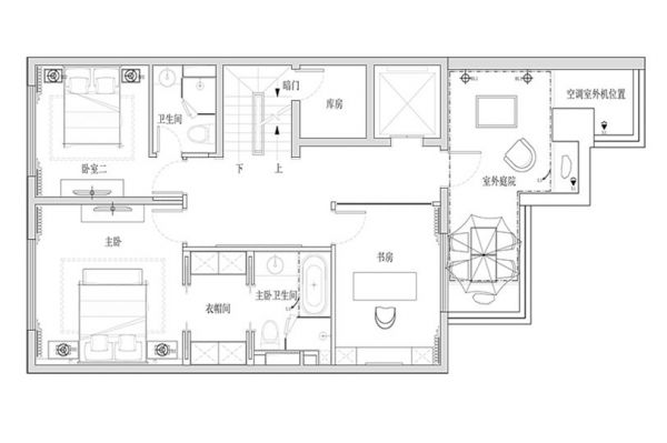
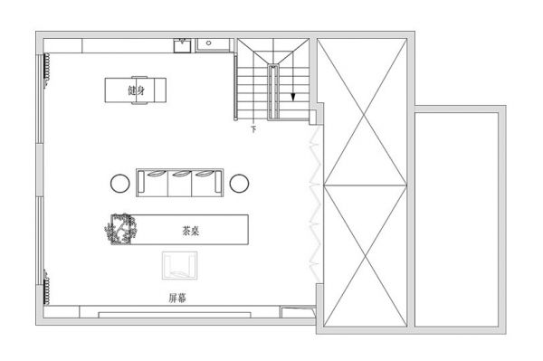
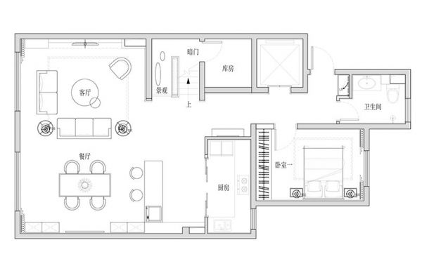
这一层主要功能有:客厅,餐厅,卫生间,区域划分合理且宽敞,流动性较好。
网址:龙湖景粼原著--现代简约 https://www.jiaju82.com/news-view-id-692449.html