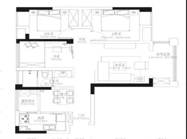
93平的北欧风三房,营造独特的格调感
发布时间:2020-03-11 17:00
案例详情 今天分享的是一套建筑面积为93平米的现代北欧风三居室案例,房子的格局算是比较端正,设计师在装饰手法上,选择大块面的概念,舍弃了一些细节上的处理,让整个家看起来更加宽阔、大气,让人觉得简单而又有格调。搭配白色的踢脚线和上方的黑色置物架,整个餐厅给人一种简洁、轻松的感觉。餐厅在灯光的照耀下显得格外的美观,展现出屋主对于生活的讲究。 铺贴木地板的客厅搭配素色的地毯和沙发,显得更加温馨和舒适。

走过餐厅就到了客厅空间,客厅的电视背景墙刷成了深蓝色,在挂画的上方做了两个筒灯,让人把视线集中在挂画上。

厨房内部是U字形的橱柜布局,白色的墙砖搭配灰色的地砖和绿色的橱柜,厨房不止是把收纳做到位,在颜值上也不低。

卧室的走廊尽头墙面上摆放了一幅装饰画,在灯光的照耀下,仿佛是在展示一面背景墙,看起来更有格调感。

主卧室的床头背景墙刷成了湖蓝色,两侧垂下对称的吊灯,中间摆放一个黄色的装饰画,在灰色墙面和软装的衬托下,显得更加简约、清新。

书房处靠窗布置了一个榻榻米地台,方便屋主在工作之后休憩一些

卫生间内用一块玻璃隔断来划分湿区和干区,充分利用窗台和马桶上方的空间来做收纳,让卫生间变得更为实用一些。

大理石的餐桌搭配透明餐椅,在餐桌上有着精致的摆盘和装饰品

餐厅和玄关连在一起,整体的配色以灰色调为主,墙地面都刷成了灰色

客厅的电视做了嵌入式的设计,可以电源线都隐藏起来。

书桌的上方搭配隔板来做收纳,让书房看起来更加简洁大方。
网址:93平的北欧风三房,营造独特的格调感 https://www.jiaju82.com/news-view-id-692550.html