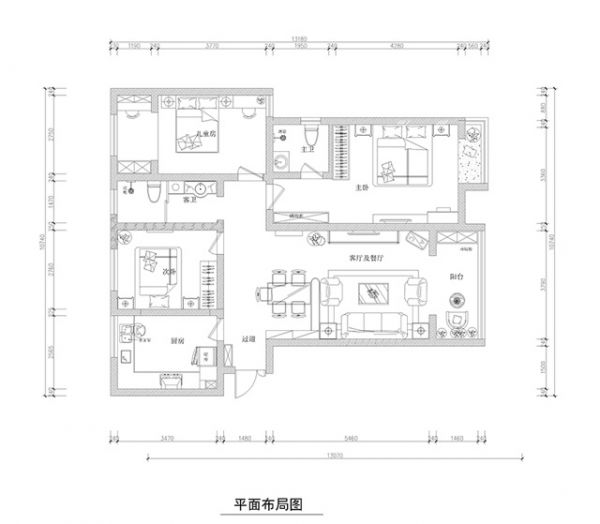
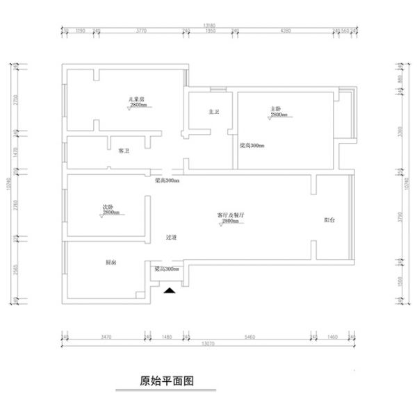
设计案例 | 正商新蓝钻 128 平米现代风格正商新蓝钻三居室 装修设计我的家 (7)张
发布时间:2020-03-14 06:13

郑州十大新锐设计师
新浪网络交换空间特邀
设计师中国装饰建筑协会高级室内建筑师。
中国软装饰协会会员.
全国最大案例库上镜设计师特邀会员。
郑州家居频道特邀设计顾问







峰翼高端工作室融合东西方家居时尚,以全新的“五大主流生活,十大设计风格”为室内环境艺术设计宗旨,配合业之峰全新模式的“完整家居”服务,为消费者创造真正完美的完整的家居生活环境。
更多案例网址:设计案例 | 正商新蓝钻 128 平米现代风格正商新蓝钻三居室 装修设计我的家 (7)张 https://www.jiaju82.com/news-view-id-693038.html