不一样的浪漫 128平法式风情公寓
发布时间:2020-03-14 10:01
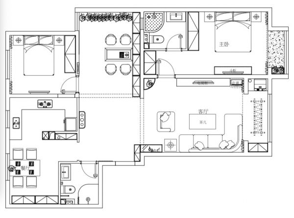
案例详情 法式风格的装修,给人的印象优雅、浪漫。今天要给大家介绍的这套128平米的法式公寓,以原木色作为主要元素,然后设计师在其中还点缀了古铜、鲜花和陶艺等各种唯美、浪漫元素,整个房间流淌着复古的优雅韵味。法式风格的装修,给人的印象优雅、浪漫。今天要给大家介绍的这套128平米的法式公寓,以原木色作为主要元素,然后设计师在其中还点缀了古铜、鲜花和陶艺等各种唯美、浪漫元素,整个房间流淌着复古的优雅韵味。

整个公寓以原木色作为主要的元素,给房间染上一层温润而又古朴的韵味。宽敞的过道空间,增加了室内的明亮感,流淌着欧式美学的复古气息。

与原木色快要融为一体的L型深咖色沙发,如果再加上一个小小的茶几,便是一个可以和朋友悠闲玩乐的卡座了。隔断墙使用玻璃材质,从视觉上扩容了空间。

书房采用的是墙柜搭配隔板桌的方式,这样不仅节省空间,还创造了许多收纳空间,就连墙面上的小装饰都有收纳的作用呢,是不是很有趣?

飘窗处,可以做一个安静的阅读角,可以边读书,边欣赏窗外的老街风景,简直不能更惬意了。

大理石泼墨一般的纹理极具东方古典韵味,大面积的镜面从视觉上扩容了整个浴室空间。镜子是直接贴在墙面上,这样的设计既简约又大方。

法式风格的装修,给人的印象优雅、浪漫。今天要给大家介绍的这套128平米的法式公寓,以原木色作为主要元素,然后设计师在其中还点缀了古铜、鲜花和陶艺等各种唯美、浪漫元素,整个房间流淌着复古的优雅韵味。

小小卧室里搭配出小书房,墨香书染成了提升小居室格调的最佳利器

节省空间,还创造了许多收纳空间
网址:不一样的浪漫 128平法式风情公寓 https://www.jiaju82.com/news-view-id-693076.html