140平浅色橡木家 老房子的翻身战
发布时间:2020-03-14 10:04
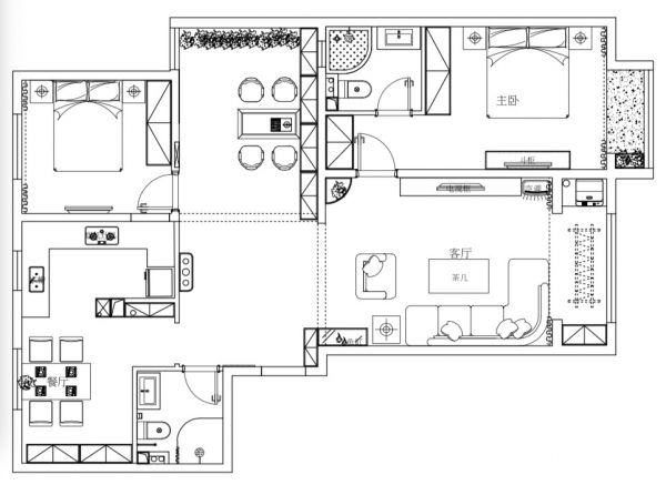
案例详情 原木色装修,贴近自然、温润柔和,是当下不少都市人喜爱的装修风格。本案为一套十几年房龄的二手房,设计师在翻新的过程中依据屋主的喜好,大量使用了浅色的橡木家具,既解决了收纳问题,也让这个140平米的老房焕发出不一样的温馨感。

看看漂亮的设计师的灯吧,悬挂在客厅中不寻常的桌子上方,同时利用多彩的椅子作为辅助,这是一种可以唤醒你的记忆的艺术手法。公寓利用附加移动,滑动的隐藏墙壁和门,来放大公寓。

厨房使用了简约白色的橱柜,看上去清爽洁净。五个小吊灯选择了金属的利落高冷外形,为简约的厨房添加了个性气息。

公寓内景,马赛克的复古和镜面的迷离搭配,一条走道走过书香与阳光,将狭长走道赋予内涵。整个走廊书香满溢,房间里静谧安和。

看看漂亮的设计师的灯吧,悬挂在客厅中不寻常的桌子上方,同时利用多彩的椅子作为辅助,这是一种可以唤醒你的记忆的艺术手法。公寓利用附加移动,滑动的隐藏墙壁和门,来放大公寓。

看看漂亮的设计师的灯吧,悬挂在客厅中不寻常的桌子上方,同时利用多彩的椅子作为辅助,这是一种可以唤醒你的记忆的艺术手法。公寓利用附加移动,滑动的隐藏墙壁和门,来放大公寓。

公寓内景,马赛克的复古和镜面的迷离搭配,一条走道走过书香与阳光,将狭长走道赋予内涵。整个走廊书香满溢,房间里静谧安和。

设计师根据屋主的喜好,大量的运用橡木,温润的色泽和亲和的质感让整个小公寓宁静亲和
网址:140平浅色橡木家 老房子的翻身战 https://www.jiaju82.com/news-view-id-693089.html