怡园现代设计方案688净醛装
发布时间:2020-03-14 10:04
案例详情 怡园现代设计方案现代简约明快简洁的线头,连绘出大方的居住环境,更加突出房子本身的优势,装修完成,爱家诞生了,看着房子从一个毛坯变成现在这个样子,就好像看着一个宝宝慢慢的长大丰满直到成为一个漂亮的大姑娘一样,喜悦之情不时溢于言表,这 是我今年最高兴的事情了,但是过程也是今年最辛苦的事情了,按照老公的说法:你完成了一件你这辈子最想完成的事情。是的,那个女人不渴望有一个自己的家, 不渴望有一个温馨的港湾呢。接下来就给大家展示一下我的家。

新房老房装修,客厅装修设计效果图。

卧室,背景墙用了如意纹的壁纸。请注意左侧,那可是俺最激动的地方——弧形浴室凌空出世。

餐厅相对来说就比较小了,就是简单的餐桌和餐椅,但是很美观。整体橱柜看上去就是比较舒服的。

侧吸式油烟机的吸力没有想象中那么差的,装的稍微低一些还是很好用

卫生间做了干湿分离,镂空雕花隔断后面就是洗手盆了。客厅过来以后是一个隔断。

客厅,的特点就是木质的,原木色的地板,和原木色的电视背景墙,我喜欢这种自然纯净的感觉,不加修饰也是一种美。

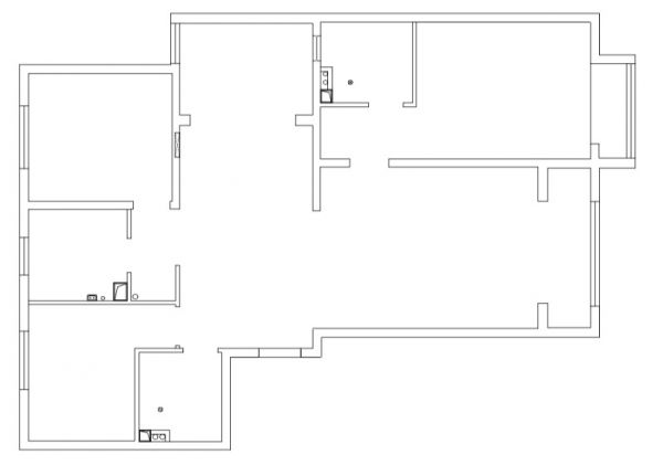
基础户型图明快简洁的线头,连绘出大方的居住环境,更加突出房子本身的优势

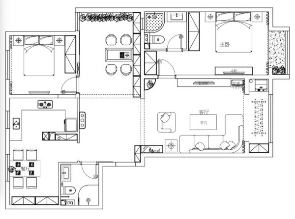
方案及布局明快简洁的线头,连绘出大方的居住环境,更加突出房子本身的优势
网址:怡园现代设计方案688净醛装 https://www.jiaju82.com/news-view-id-693091.html