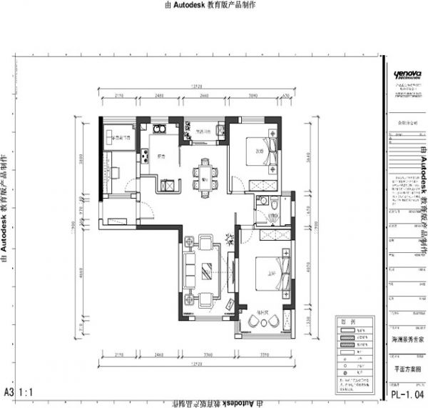
设计案例 | 海洲景秀世家 105 平米混搭风格海洲景秀世家-三居-简欧风格 (5)张
发布时间:2020-03-17 06:23

2013年“美涂士杯设计大赛”入围奖





网址:设计案例 | 海洲景秀世家 105 平米混搭风格海洲景秀世家-三居-简欧风格 (5)张 https://www.jiaju82.com/news-view-id-693440.html
2013年“美涂士杯设计大赛”入围奖
网址:设计案例 | 海洲景秀世家 105 平米混搭风格海洲景秀世家-三居-简欧风格 (5)张 https://www.jiaju82.com/news-view-id-693440.html