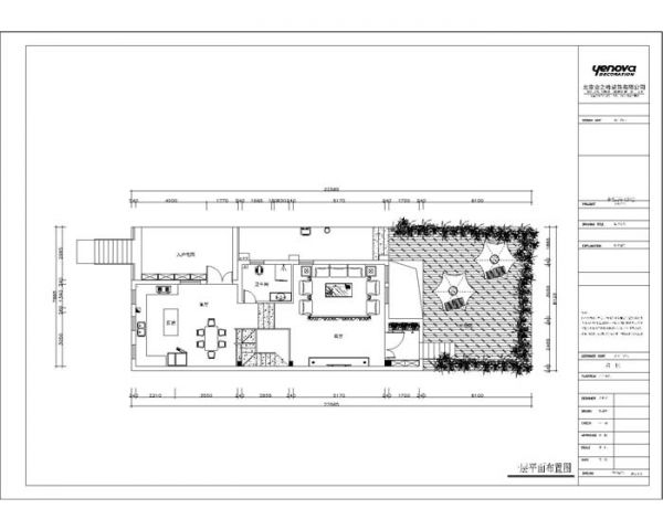
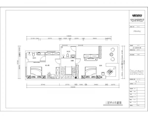
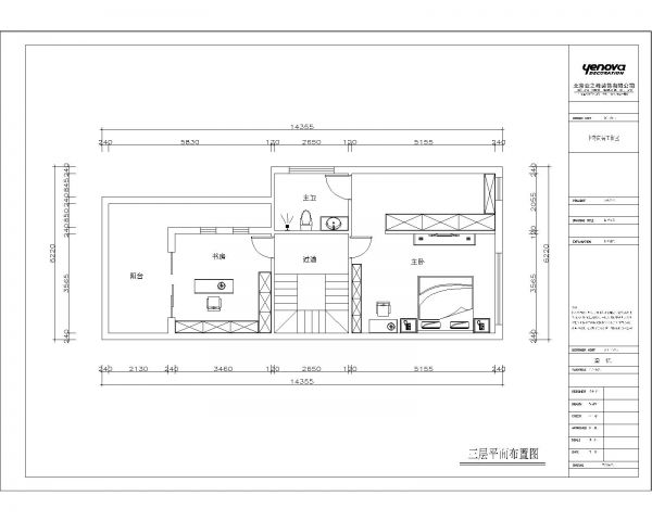
设计案例 | 雍湖湾别墅 220 平米其他雅致主义 (7)张
发布时间:2020-03-21 06:18








成都业之峰天府精品设计中心成立于2011年10月1日。位于天府大道地铁大厦艺展中心6楼,专业定位于成都高端客户群体的家装定制服务,高端楼盘的样板间,会所等工装系列的设计及施工。天府精品设计中心系集团定位于南延线及天府新区的高端楼盘发展而特别成立的,人员均为从业时间久、经验丰富的优秀设计师组建而成。虽然成立时间不久,但凭借强大的设计团队,优质的服务,赢得客户的一致好评,并在公司众设计中心综合评比中名列前茅。
网址:设计案例 | 雍湖湾别墅 220 平米其他雅致主义 (7)张 https://www.jiaju82.com/news-view-id-694234.html