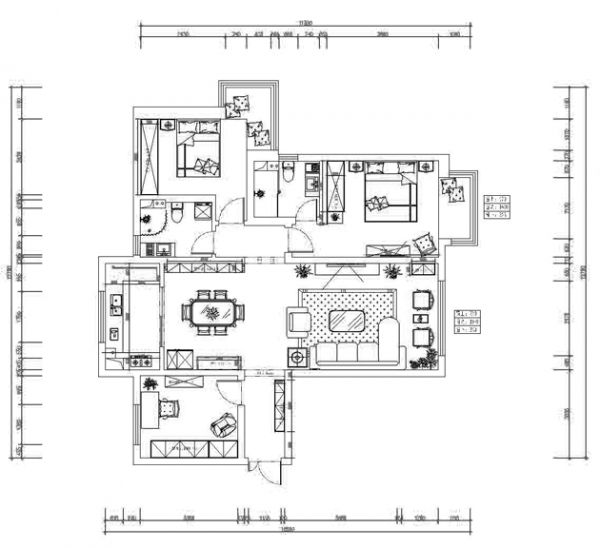
装修美图 | 阳光怡园 154 平米新中式风格诗意朦胧 (6)张
发布时间:2020-04-04 06:18







业之峰月星设计中心位于连锁企业中实集团旗下的月星家居兰州店内四楼,共有优秀设计师十余名,是兰州为数不多的能与大型家居建材卖场合作开设的店面。开业以来为业之峰兰州分公司创造了骄人的业绩。
更多案例网址:装修美图 | 阳光怡园 154 平米新中式风格诗意朦胧 (6)张 https://www.jiaju82.com/news-view-id-696348.html