紫竹院老小区外扩装修案例
发布时间:2020-04-04 09:02
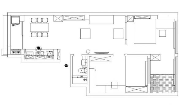
案例详情 业主需求:我的装修预算是10万左右,室内面积为90平方米。要求舒适,设计新颖有创意,空间利用合理。设计说明:本案为两居室,建筑面积为90平米,使用面积80平米,以温馨为主为您打造舒适的家预算说明:工程造价:9.9万

失意劳累时,家是为你遮风挡雨的避风港;人生迷途时,家是你在黑夜行走的一盏明灯;

平静淡泊时,家是柴米油盐酱醋茶。家,是房屋,

更是在这房屋内长年累月的幸福生活,每个人都对家充满期待,期待幸福的环绕

一张床,营造一个舒适的卧室,带来优质的睡眠状态和精气神,每天都是元气满满。

二三十平米的活动空间,客厅却是家人、欢声笑语的聚集地

家是什么?丰子恺说,“这里是我的最自由、最永久的本宅,我的归宿之处,我的家”,在汪曾祺的心中,“家人闲坐,灯火可亲”是冬日里最暖的场景。家,原本是一座冰冷的建筑物,因为有了家人,家变成了最温馨的存在。
网址:紫竹院老小区外扩装修案例 https://www.jiaju82.com/news-view-id-696363.html