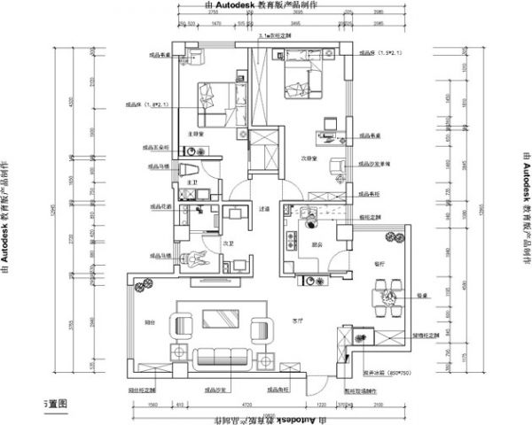
装修美图 | 南湖环保厅 137 平米美式风格南湖环保厅 (3)张
发布时间:2020-04-13 06:19

08年获得中高级造价师证



网址:装修美图 | 南湖环保厅 137 平米美式风格南湖环保厅 (3)张 https://www.jiaju82.com/news-view-id-697331.html
08年获得中高级造价师证
网址:装修美图 | 南湖环保厅 137 平米美式风格南湖环保厅 (3)张 https://www.jiaju82.com/news-view-id-697331.html