【远洋天著】现代简约 别墅 500㎡
发布时间:2020-04-14 01:02
案例详情 客户自己本身就喜欢简洁明快,有具有设计感的东西。本案设计运用几何线条修饰,色彩明快跳跃,外立面简洁流畅,以波浪、架廊式挑板或装饰线、带、块等异型屋顶为特征,立面立体层次感较强。体现功能特征为主,没有过分的装饰,一切从功能出发,讲究造型比例适度、空间结构图明确美观,强调外观的明快、简洁。体现了现代生活快节奏、简约和实用,但又富有朝气的生活气息。

不在一个水平线下的客厅与餐厅显示出简约风格极具线条感的特质和简约并不简单的品质,灰色的墙面和中空的餐厅给人一种错落的美。

这是给孩子设计的儿童房,没有用很明艳的色彩,反而使用了灰粉色,这样的空间设计,使得不管多大,这都是属于她的一片天地,舒适的设计,总能让人心旷神怡,回到家就感到舒服

这是地下一层的休闲区域,墙板那里预留了两个下翻床,如果有客人来就可以满足居住要求,平时这个区域是跟孩子的玩乐区域,足够的空间可以让孩子尽情玩耍,充分的采光也让整个区域明亮起来。

这是主人的私属空间,卧室与衣帽间与卫生间的大融合,既简单又实用。四周的灯光配合上大量的白灰色,体现出一种明亮的感觉,让空间变得非常舒适。

这是一个休闲区域,撞色的搭配回到家就仿佛褪去外界的压力,踏入健身区是一种欢快的颜色使人彻底放松身心,享受生活,享受最纯粹最原始的快乐。

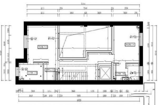
这是地下二层的原始户型图,原始布局混乱,并不能满足客户的需要,经过设计以后,具备了储物间、设备间、影音室、车库等功能区域。

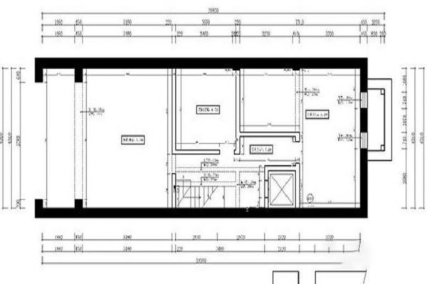
这是二层的原始户型图,基本的功能区域没有大动,预留了一个儿童房,一个老人房,设计了不同的风格装饰,配合整体风格进行特殊化搭配,更具有特点。
网址:【远洋天著】现代简约 别墅 500㎡ https://www.jiaju82.com/news-view-id-697657.html