【相来家园】现代简约 跃层/loft 150
发布时间:2020-04-14 16:02
案例详情 本案设计是现代简约风格,在现代的繁华时代的都市,现代风格尤为让年轻人追捧,简单的线条,简单的颜色,简单的风格让疲惫的业主回到家有种解放的感觉

餐厅没有设计复杂的造型,采用木餐桌,白色座椅,使空间显得干净简洁。顶面的设计,简单吊顶 把空间衬托的更加阔大

在软装的搭配上,使用了简单的设计效果,布艺沙发与实木楼梯的搭配,使整个空间看似复杂,其实简单大方。

吊顶灯带,为夜晚增加了独特的气氛,空间简约,但色彩的搭配弥补了视觉上的单调。整个空间的设计也是个性的展示。

客厅在顶面,地面,墙面做出了不同的设计规划。电视背景墙上方的吊顶没有做其他造型,只是简单的平面吊顶,使空间的张力表现到极致。

雅士白和金黄色的搭配,电视柜,床头柜设计简洁,线条流畅,富有时尚气息。充分体现自然,时尚的生活理念。

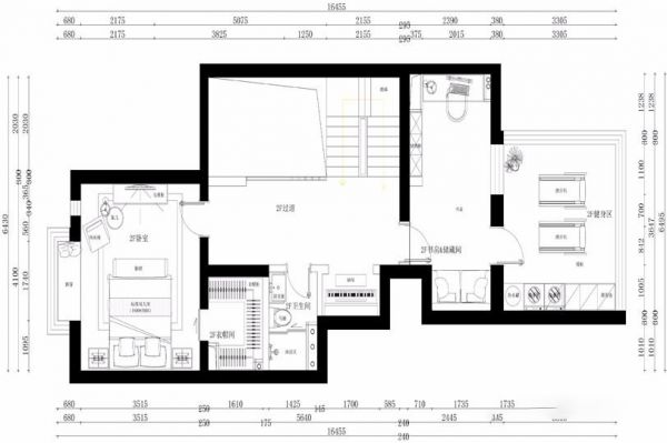
二层布置为客户需求所布置,健身区,卧室,以及书房。满足了业主要求,尽量的将空间感大一点,解决了钢琴的摆放位置。合理的安排使用空间

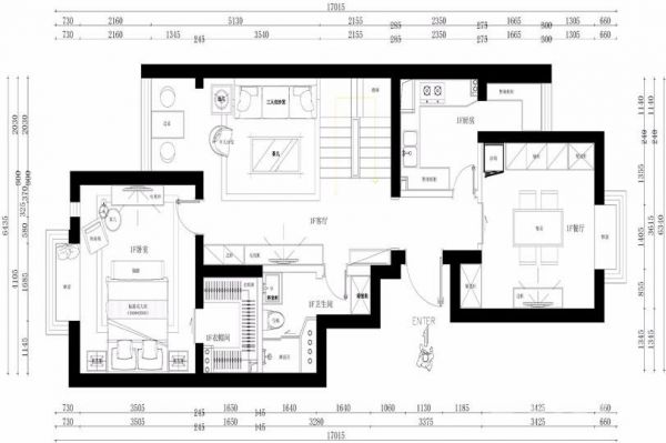
本案一家人居住,一层为厨房,餐厅,卧室有衣帽间需求。整体围绕空间合理划分,充分完成业主所需要求
网址:【相来家园】现代简约 跃层/loft 150 https://www.jiaju82.com/news-view-id-697856.html