运河西大街8号院 57平米装修
发布时间:2020-04-14 17:03
案例详情 项目名称:运河西大街8号院设计风格:现代简约施工单位:北京实创装饰公司整体家装:装修一口价家装类型:88理想装工程面积:57㎡房屋类型:1居1厅1卫整体报价:74031元亮点本案定位为现代简约风格,现代简约风格是以简约为主的装修风格,简约风格的特色是将设计的元素、色彩、照明、原材料简化到最少的程度,但对色彩、材料的质感要求很高。

原始结构空间窄小,没有设计客厅的空间,因为客户暂时一个人居住固将原先的卧室改成客厅,将厨房的墙体打通,使整个空间变得宽敞明

亮点本案定位为现代简约风格,现代简约风格是以简约为主的装修风格,简约风格的特色是将设计的元素、色彩、照明、原材料简化到最少的程度,但对色彩、材料的质感要求很高。

卧室设计以舒适温馨为主,顶面造型以简洁的石膏线条饰面,床头两边各挂一个垂吊灯,时尚精美,整个卧室的色调,黑白相间,时尚简洁体现了屋主人的生活格调。

厨房的设计不知以美观为设计原则,而要注重实际应用,此方案的吊顶为简单花纹组成,显得高档又部死板,橱柜门板采用高档香槟色,这种颜色不易脏而且有活力。

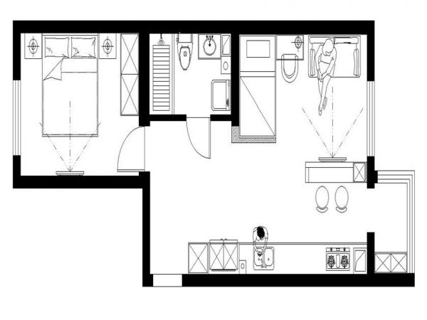
户型图
网址:运河西大街8号院 57平米装修 https://www.jiaju82.com/news-view-id-697883.html