【小营西里】现代简约 四居室 145㎡
                        发布时间:2020-04-16 12:02
                    
                    
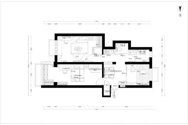
                        案例详情 整体设计规划:现代风格,原有两居室,改三居室,男孩房,女孩房,临时居住区,干湿分区,每个空间扩大了储物空间,动线清晰明快。  
  
  
  
  
  
 
                 
 卫生间整体通铺石色瓷砖,木色台盆与镜柜成套安装,满足基本功能性的洗漱空间。
 
 主卧空间通过蓝色与白色、线条与块面的组合穿插,塑造出整体的协调感和节奏韵律。不同层次高级灰的色彩运用,结合细致的几何纵向线条,铺排出极具现代感的美学风尚
 
 原有两居室,改三居室,男孩房,女孩房,临时居住区,
 
 餐厅横摆放?一张1米8的六?位实木大餐桌。墙面和餐边柜都是白色,来突出灯具的?属质感以及餐桌实木的质感。
 
 厨房空间相对紧凑,依然是以白色为主,透亮的质感,无形中扩大?视觉空间。
 
 现代风格,原有两居室,改三居室,男孩房,女孩房,临时居住区,干湿分区,每个空间扩大了储物空间,动线清晰明快。
网址:【小营西里】现代简约 四居室 145㎡ https://www.jiaju82.com/news-view-id-698373.html

