你不知道的传统中式美
发布时间:2020-04-16 14:01
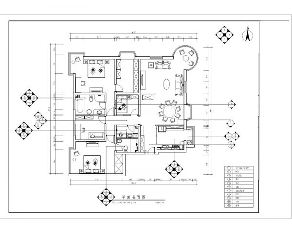
案例详情 业主需求:业主对中国情结的东西很喜欢,尤其是一些有寓意的图案。设计理念:设计老师在了解业主家庭需求后,为业主做了新中式案例,合理运用中式元素在设计中。预算说明:80万含家具
餐厅是传统中式家具,用圆形餐桌寓意聚气。全家阖气。
客厅地毯是传统型回字纹,寓意生财。中国画更能显出业主的品质
书房的颜色和其他区域都不一样,大家肯定会有疑问,那是因为白色可以让人放松,在思考问题时多些创意。
传统中式卧室、简单、大气。
网址:你不知道的传统中式美 https://www.jiaju82.com/news-view-id-698412.html

