天通中苑140平简欧风格案例赏析
发布时间:2020-05-10 11:01
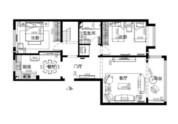
案例详情 项目名称:天通中苑 设计风格:简欧风格 设计单位:实创装饰集团整体家装:装修一口价、闭口合同家装类型:688理想装施工工期:50天工程面积:140平米房屋类型:3室2厅1厨2卫整体造价:116088元(设计+硬装)设计说明: 此户型为混搭风格,根据客户需求,为了给业主创造一个现代奢华的环境。设计中打破了纯古典欧式设计的观念,将新中式风格与现代欧式风格完美的结合在一起,使整个空间高贵奢华。 一层客厅为现代欧式风格,大气、奢华为主基调,不要过多累赘复杂的造型,体现了主人的内蕴品性。沙发造型是欧美的皮质家具,稳重又奢华。卧室床头背景墙采用茶色镜面和镂空雕花搭配,加以软包的融入以及镂空雕花吊顶的使用,使现代中式风格完美展现,使整个居室在浓浓古韵中渗透了现代的气息。二层客厅大量使用花梨木做造型,结合古典又现代的中式家具,来呈现亦古亦今的空间氛围 ,极有分寸而又极其丰富的传达着家居主人的内心,从而提升了主人的身份与品位。 餐厅的欧式镂空雕花隔板,饰以精巧的灯具以及雅致的配件,这种绝妙的组合给人以强烈的视觉意志力,成为时尚与古典的柔媚结合。

此户型为混搭风格,根据客户需求,为了给业主创造一个现代奢华的环境。设计中打破了纯古典欧式设计的观念,将新中式风格与现代欧式风格完美的结合在一起,使整个空间高贵奢华。

卧室床头背景墙采用茶色镜面和镂空雕花搭配,加以软包的融入以及镂空雕花吊顶的使用,使现代中式风格完美展现,使整个居室在浓浓古韵中渗透了现代的气息。

一层客厅为现代欧式风格,大气、奢华为主基调,不要过多累赘复杂的造型,体现了主人的内蕴品性。沙发造型是欧美的皮质家具,稳重又奢华。

餐厅的欧式镂空雕花隔板,饰以精巧的灯具以及雅致的配件,这种绝妙的组合给人以强烈的视觉意志力,成为时尚与古典的柔媚结合。

二层客厅大量使用花梨木做造型,结合古典又现代的中式家具,来呈现亦古亦今的空间氛围 ,极有分寸而又极其丰富的传达着家居主人的内心,从而提升了主人的身份与品位。

天通中苑140平简欧风格案例赏析户型图

天通中苑140平简欧风格案例赏析户型图

天通中苑140平简欧风格案例赏析户型图

天通中苑140平简欧风格案例赏析户型图
网址:天通中苑140平简欧风格案例赏析 https://www.jiaju82.com/news-view-id-701463.html